80㎡二居现代简约风格紫薇花园洲
发布时间:
2021年08月20日
小区:紫薇花园洲 面积:80㎡ 户型:二居 风格:现代简约风格
设计说明
奢侈不是一种设计风格,而是一种代表独特品味的生活态度,轻是一种优雅,低调而舒适,奢是点缀使家具看似朴素的外表下折射出一种隐藏的贵族气质
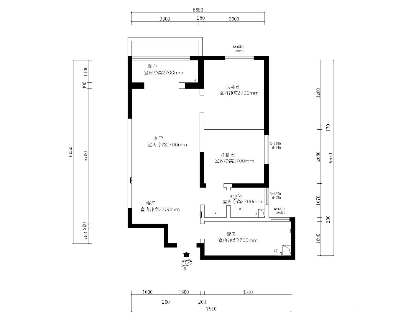
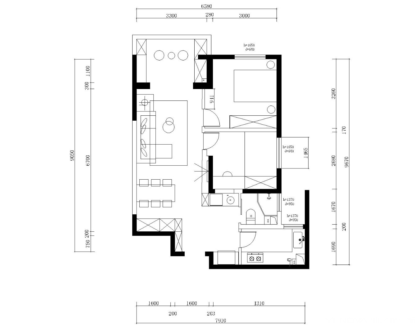
户型图

卧室

客厅





玄关

奢侈不是一种设计风格,而是一种代表独特品味的生活态度,轻是一种优雅,低调而舒适,奢是点缀使家具看似朴素的外表下折射出一种隐藏的贵族气质







