220㎡复式其他西安中海·长安府
发布时间:
2021年08月06日
小区:西安中海·长安府 面积:220㎡ 户型:复式 风格:其他
设计说明
客厅:客厅以木色为主,通过木地板与木纹面板的装饰,减少视觉的刺激。天然给空间提供一种温度,能融洽氛围,提高愉悦性。身心俱疲的时候最好的选择是待在一处安静的居所,享受静谧的环境,极目看去是整齐而又干净的事物。这是心灵停歇的地方,肉体放松的所在。就像那些治愈系的电影,总能在人烦躁不堪时让起伏不定的心情平静安稳下来。而对于亲近自然的人来说,若生活在绿意盎然的家中必能让生活增加一抹绿意。
餐厅:灰白色系的运用营造出一种清幽的感觉,赋予木纹的家具与吊顶。让整体更加素雅。而灯光的烘托让冷清中多了几分暖意。
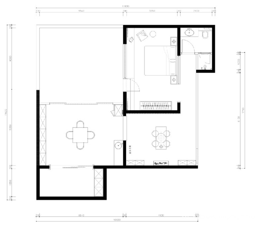
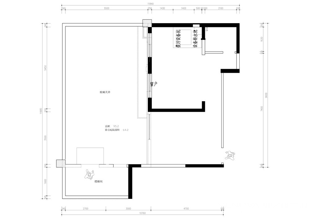
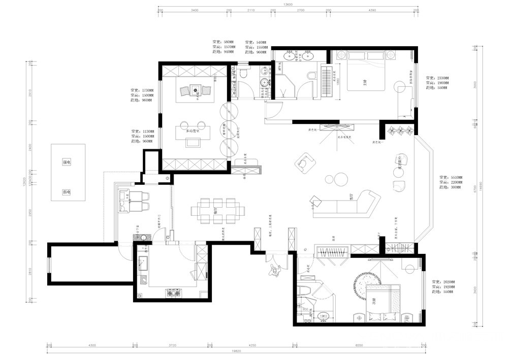
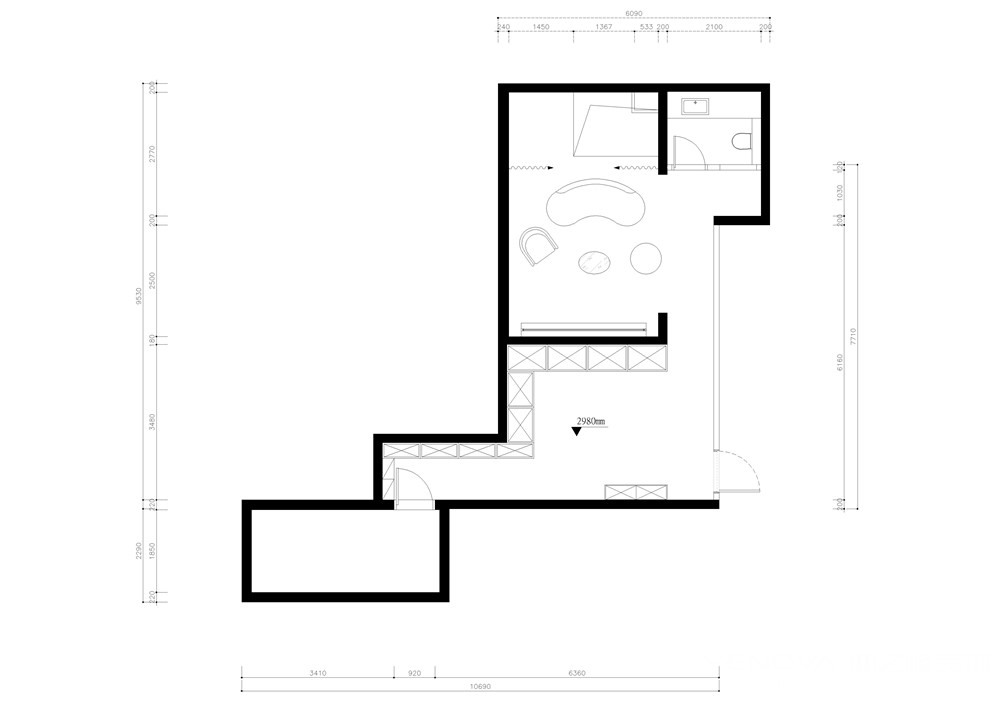
户型图

客厅










休闲区


餐厅

卧室

书房





京公安网备11010502040911