203㎡四居北欧风格融创御河城
发布时间:
2021年07月28日
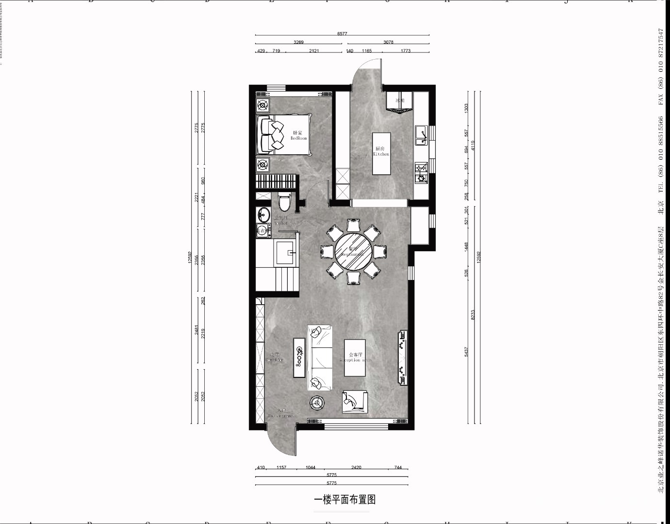
小区:融创御河城 面积:203㎡ 户型:四居 风格:北欧风格
设计说明
简约欧式风格设计特点:由曲线和非对称线条构成,如花梗、花蕾、葡萄藤、昆虫翅膀以及自然界各种优美、波状的形体图案等,体现在墙面、栏杆、窗棂和家具等装饰上。线条有的柔美雅致,有的遒劲而富于节奏感。整个立体形式都与有条不紊的、有节奏的曲线融为一体。大量使用铁制构件,将玻璃、瓷砖等新工艺,以及铁艺制品、陶艺制品等综合运用于室内。给人以既简洁又大气的感觉,从而体现简约而不简单。
装修风格是房屋装修的整体特点,每个人的喜好不尽相同,装修风格的确立让设计师更容易把握设计的立足点,让业主朋友更容易表达出对所需的装修效果的一种需求。
户型图

客厅







卧室



餐厅

厨房





京公安网备11010502040911