142㎡三居极简风格乐居场小区
发布时间:
2021年06月23日
小区:乐居场小区 面积:142㎡ 户型:三居 风格:极简风格
设计说明
客户是给孩子买的房子,要考虑当代年轻人的生活,整体采用极简的墙板和点光源的做法,营造出现代年轻人喜欢的搭配方式。天然石材体现出硬装的质感,意式皮质沙发展现出软转的精致,整体色调稳而不轻,时尚确有味道。整间客厅淡雅的色彩与简约的线条,在增加了客厅空间感的同时更能平静人的心情。墙面的木质柜子在保证了收纳的同时,兼顾了颜值,显得客厅更加温暖。造型利落的铁质茶几和布艺休闲椅搭配,恬静,柔软的毛毯更显得整个空间温暖悠闲。餐厅:淡雅的颜色印在眼里构成简洁搭配,静谧雅致,营造出令人愉悦的就餐环境。主卧·:充满了细节与设计感的家具摆放,足够的收纳空间依然是一大亮点,为生活提供便利,也让这一方休憩天地更理解主人。厨房:黑白基调,金属构造出一间井然有序的厨房,人间烟火充盈其中,冷与暖碰撞,正是世界的迷人。
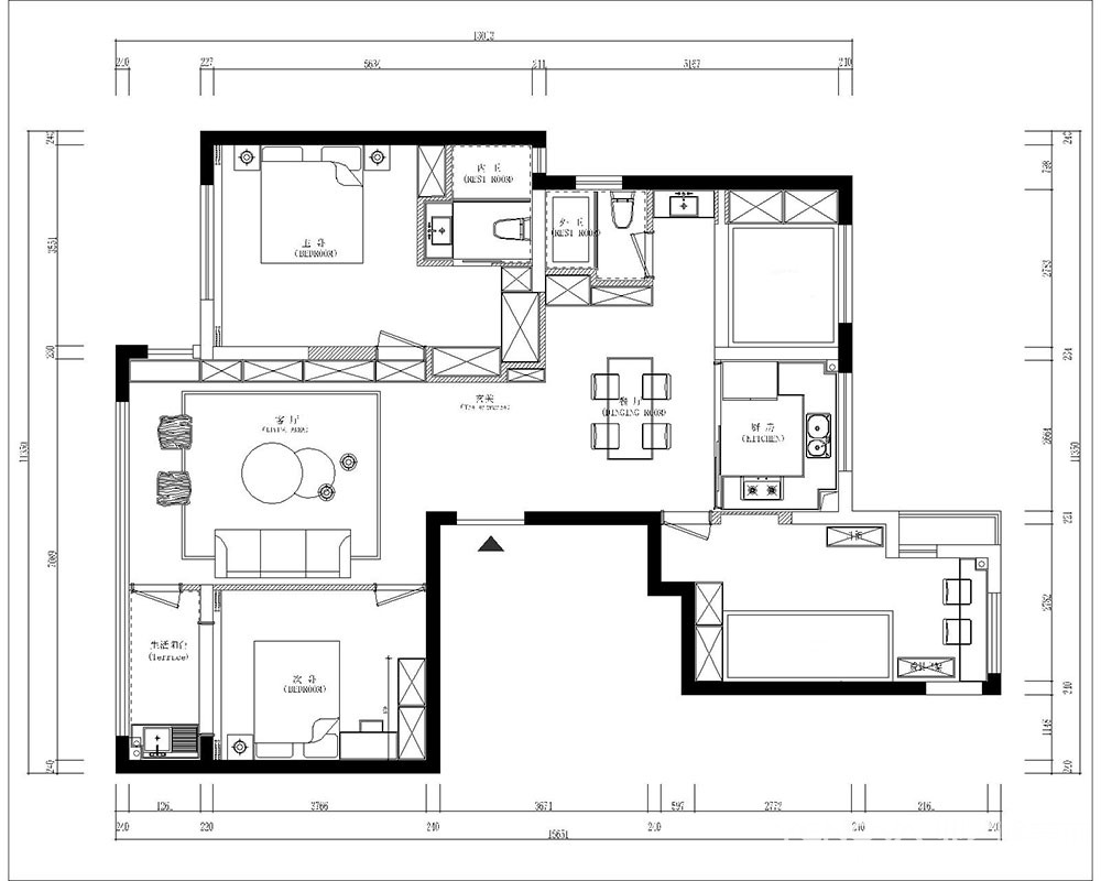
户型图

餐厅

卧室

厨房

卫生间

客厅








京公安网备11010502040911