118㎡三居美式风格香榭御澄
发布时间:
2021年06月22日
小区:香榭御澄 面积:118㎡ 户型:三居 风格:美式风格
设计说明
不知从何时起,开始钟情于复浪漫诗意的复古典雅风格,让人在繁华的现代化大都市里,能拥有片刻的安逸宁静。
本案例是一家三口,男主人和女主人很恩爱,所以装修的格调也温暖又诗情画意,包括后期的家具以及软配,都是客户跟爱人精挑细选,一点一点布置的。美式家具的造型笨重颜色深沉,很占空间,但是如果以轻奢风便复古的家具,既可以整体搭配,又可以舒适使用。
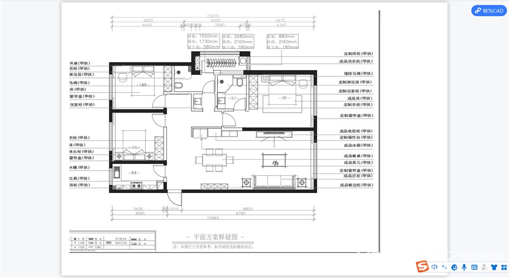
在结构方面的改动有一下几点值得参考,1客厅餐厅空间整合,做餐客一体,空间互用互动,显得整体空间大然后整洁2,利用墙体和餐边柜的空间镶嵌了冰箱,解放可厨房和餐厅的空间以及美观度3,扩宽了走廊通道,一进门的第一感觉,空间很宽敞不拥挤。4,卫生间做了干湿分离,可同时满座俩人以上家人使用卫生间。
空间的合理利用以及人性化的设计,使得整个家更和谐。为了更满足主人的居住要求,本案在平面布局上做了很大调整,强调空间的自然融合,提升了客户的个性特点和品质追求。
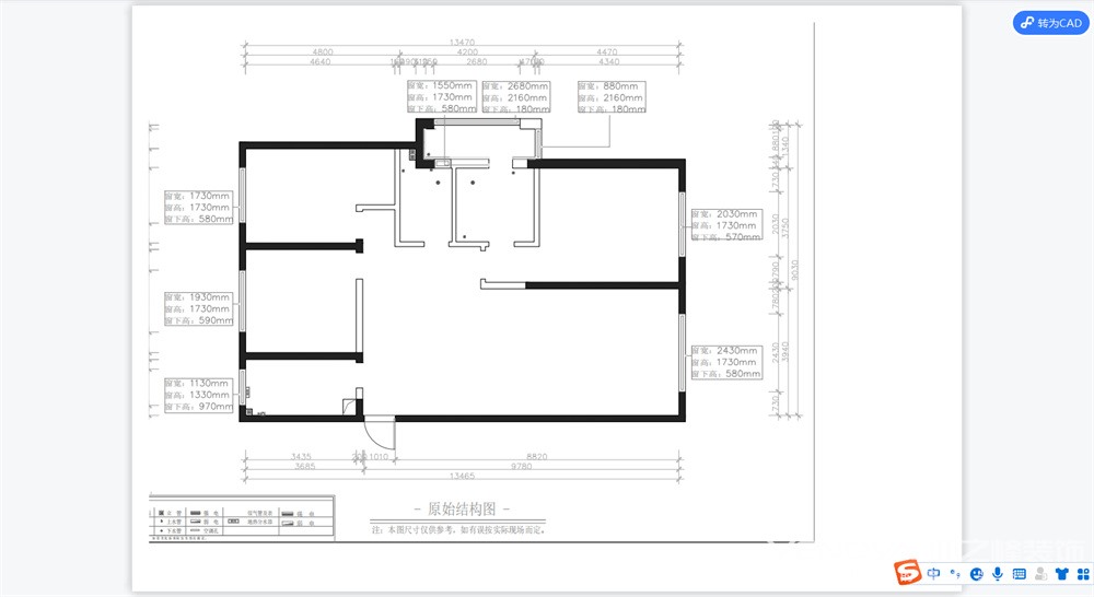
户型图

客厅




餐厅

卧室







京公安网备11010502040911