290㎡复式现代简约风格天地源大都会
发布时间:
2021年06月22日
小区:天地源大都会 面积:290㎡ 户型:复式 风格:现代简约风格
设计说明
客厅作为业主每天的主要生活空间,东方文化的隐逸在内塑造,也需要外部家具器物的烘托,从而保持精气神三者统一,保持感官上的简约整洁。尽管外在拥有现代美学特征,却以低调沉稳的精神面貌示意,实现品味和思想上的优雅。
餐厅沿用了客厅的浅色调,咖色的椅子使得和客厅相呼应,简约的吊灯使得整个空间更加通透。入户处设置独立玄关拱形造型作为对景彰显大气。
卧室的空间搭配十分简洁,色调明了,主题明晰,床头背景采用浅色底景,加之装饰画,搭配简约吊灯,静中又不缺乏雅致卧室的素雅和顺来自软装配饰之间的和谐默契,没有刻意的强调设计感。
本案地处西安市雁塔区住宅天地源大都会,本案风格是现代简约。以最简洁的生活方式体现一种简单的心态,设计中即有粗狂的原生态石材,也有细腻的线条,平顶、灯线,以及无造型的大地面打破以往的框框。
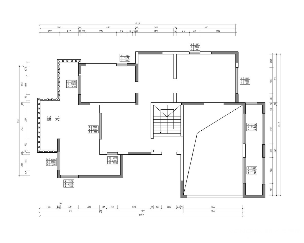
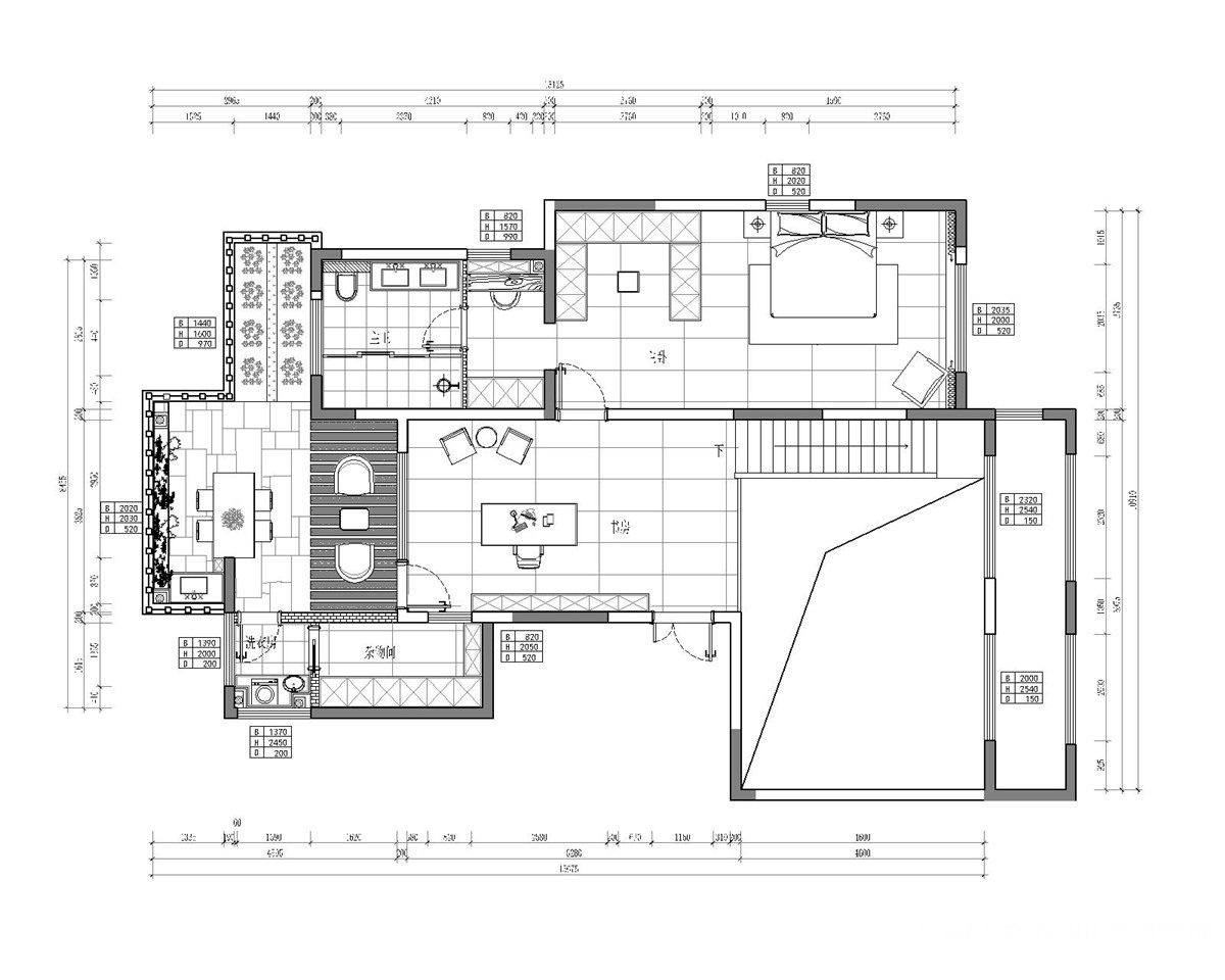
户型图

餐厅

客厅






休闲区

书房

卫生间

卧室






京公安网备11010502040911