280㎡五居新中式风格紫楹台
发布时间:
2021年06月22日
小区:紫楹台 面积:280㎡ 户型:五居 风格:新中式风格
设计说明
此案位于浐河边上,大平层。业主事业有成,深爱传统文化。空间处理上做迂回、融合、区分等处理。做到大气、深厚、明晰。
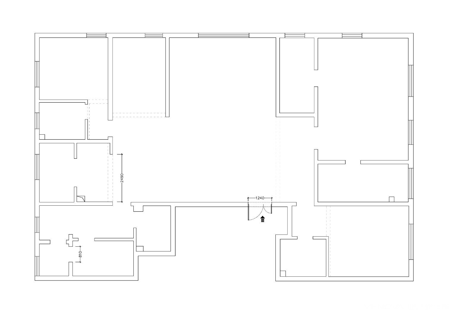
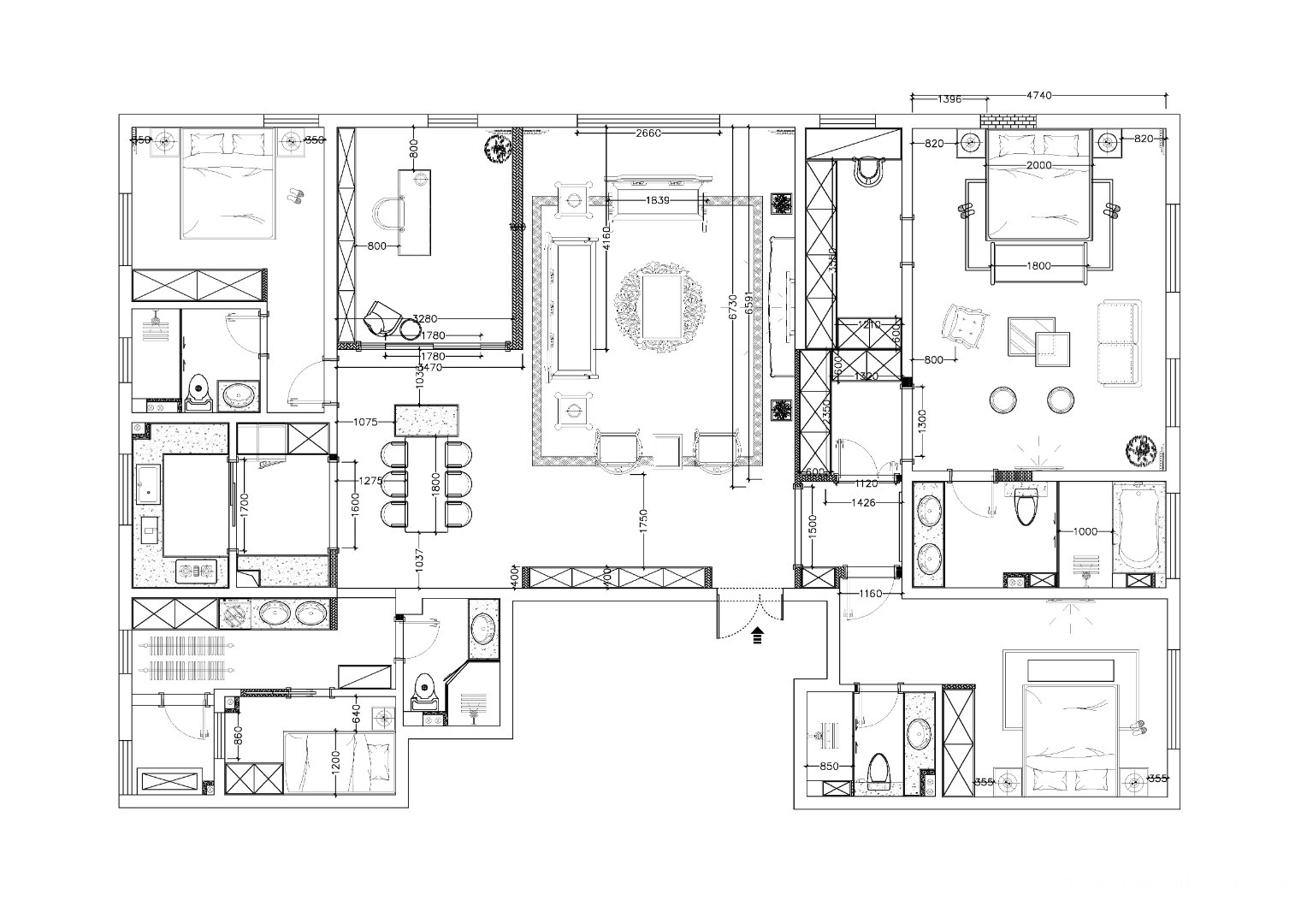
户型图

卧室


客厅




休闲区



餐厅

卫生间

此案位于浐河边上,大平层。业主事业有成,深爱传统文化。空间处理上做迂回、融合、区分等处理。做到大气、深厚、明晰。











