180㎡别墅现代简约风格世茂龙湾
发布时间:
2021年06月12日
小区:世茂龙湾 面积:180㎡ 户型:别墅 风格:现代简约风格
设计说明
本案位于世茂龙湾,毛坯装修 业主选择了中式风格
越来越多的人喜欢现代中式风格。不过要知道,现代中式风格并不是中和现代风格简单地堆砌,而是—种全新的装修风格。要明白现代中式风格的就要看看现代中式风格设计说明。
从现代人的经济、生活需求出发,运用传统文化和艺术内涵或对传统的元素作出适当的简化与调整,岁材料结构工艺进行再创造,这样设计出来的作品才会是个成熟的作品,否则不是太陈腐就是太轻浮,画虎不成反类猫,末免让人贻笑大方。
新中式风格中的家具:大多是古典家具或者是现代家具与古典家具想结合。
家具的颜色:主要是以深色为主,有深厚沉稳的底蕴。
装饰造型:主要采用硬朗简洁的直线条,空间具有层次感。既使得中式家具古典、质朴的内涵显现,又符合现代人追求的时尚感、实用性。
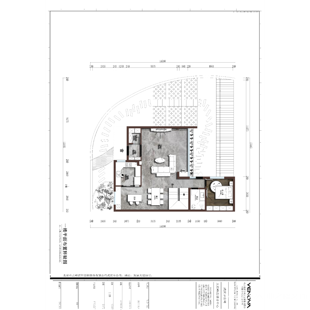
新中式装修比较注重古典古香的基调、家具与装饰的搭配。家中的古旧的老家具要善加利用,红木的家具、太师椅、有雕饰的装饰品以及灯光等等都可以增添新中式的原汁原味户型图 
厨房

客厅




卧室

卫生间





京公安网备11010502040911