350㎡别墅轻奢风格鲁商蓝岸丽舍
发布时间:
2021年06月11日
小区:鲁商蓝岸丽舍 面积:350㎡ 户型:别墅 风格:轻奢风格
设计说明
本案设计灯光设计采用最新流行的无主灯设计,以线性灯为主,和厨房餐厅区域的艺术灯、圆形筒灯共同烘托氛围。中间深色木质垭口形成框景,功能区之间分而不断,流动性极强又各自岁月静好。中西厨结合方便多元化的生活方式,体现更加健康的生活观念。
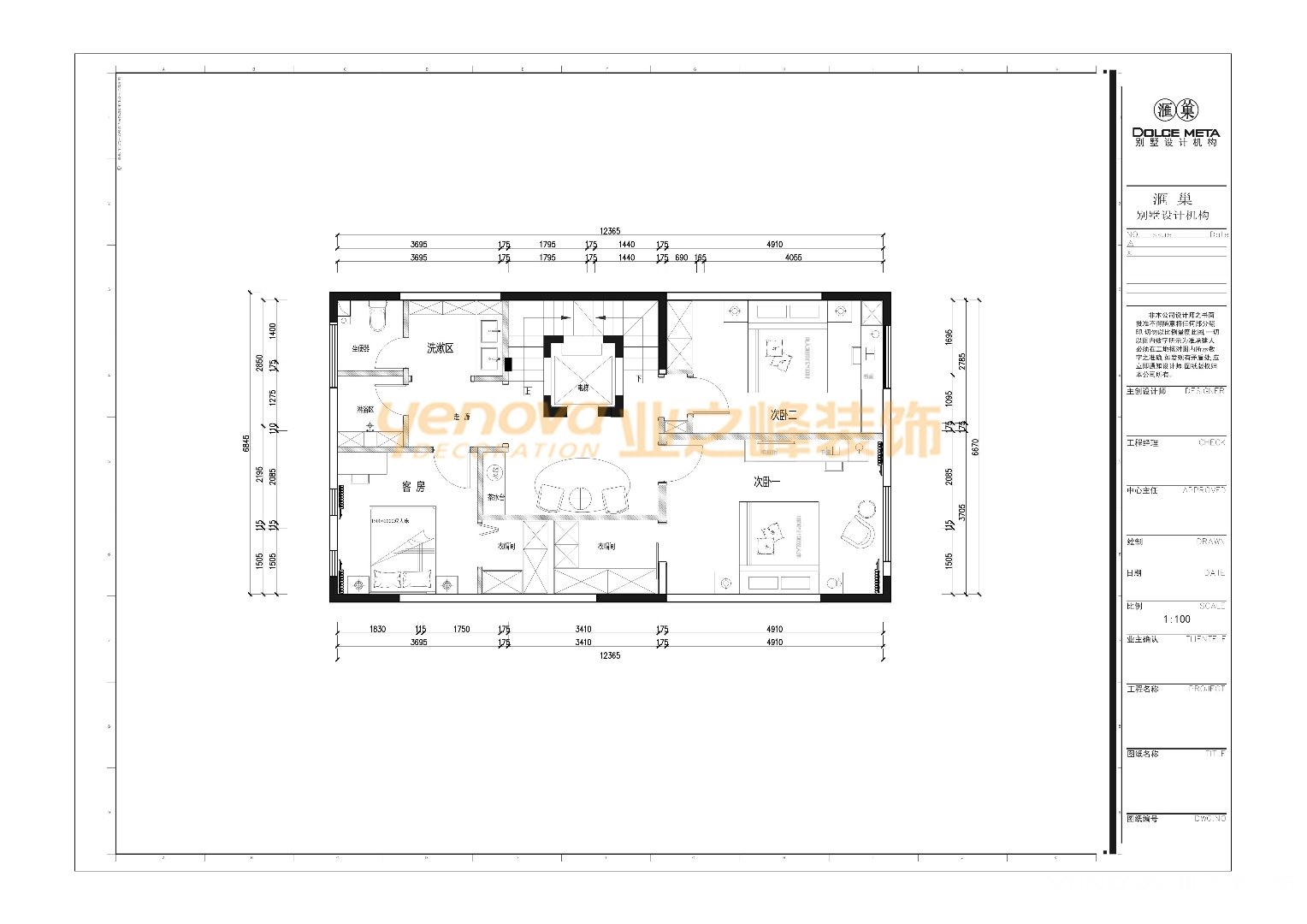
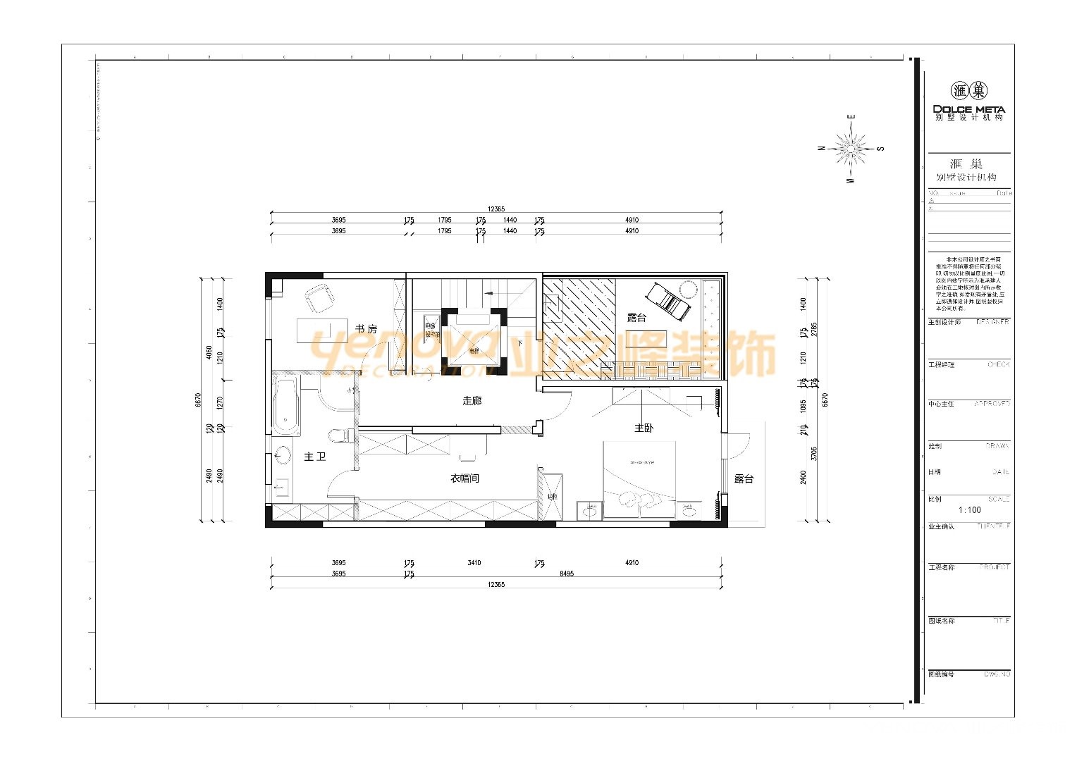
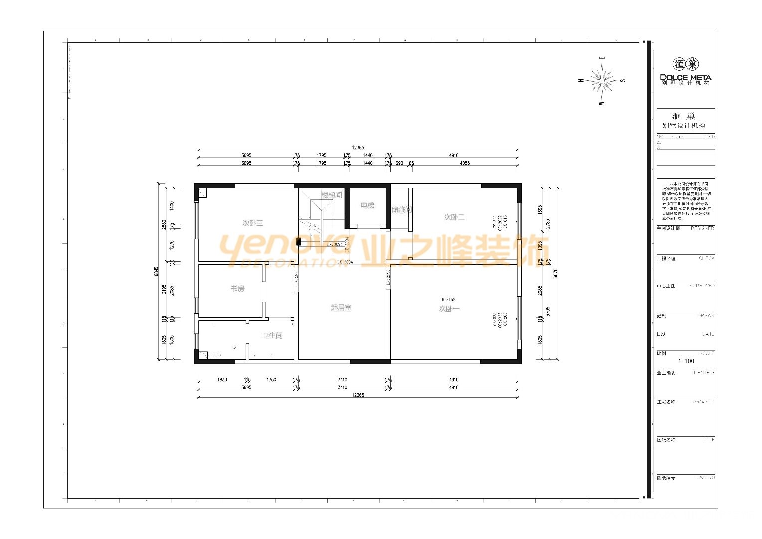
户型图

厨房

餐厅

客厅






卧室





京公安网备11010502040911