201㎡一居现代简约风格高新小区
发布时间:
2021年04月08日
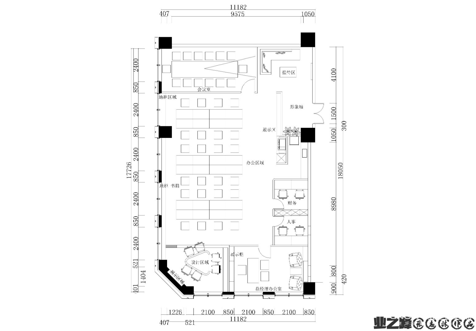
小区:高新小区 面积:201㎡ 户型:一居 风格:现代简约风格
设计说明
本作品带有小清新之感,工作之时带来视觉上的放松,在其会议室内含有工装的严肃和认真,运用多种元素将家的温馨与工作的认真结合在一起。
客厅






本作品带有小清新之感,工作之时带来视觉上的放松,在其会议室内含有工装的严肃和认真,运用多种元素将家的温馨与工作的认真结合在一起。





