422㎡别墅混搭风格蔚蓝卡地亚
发布时间:
2021年01月14日
小区:蔚蓝卡地亚 面积:422㎡ 户型:别墅 风格:混搭风格
设计说明
本案是成都高新区蔚蓝卡地亚别墅群,整体设计以中性色调作为基调,大面积运用护墙板和浅色壁纸作为基色,古堡灰色的地面,使得空间的包容性和延展性更强,软装上融入蓝色,橘色作为空间的跳色,使得整个空间活跃起来,业主三代同堂,所以在空间划分做的是干净明确。
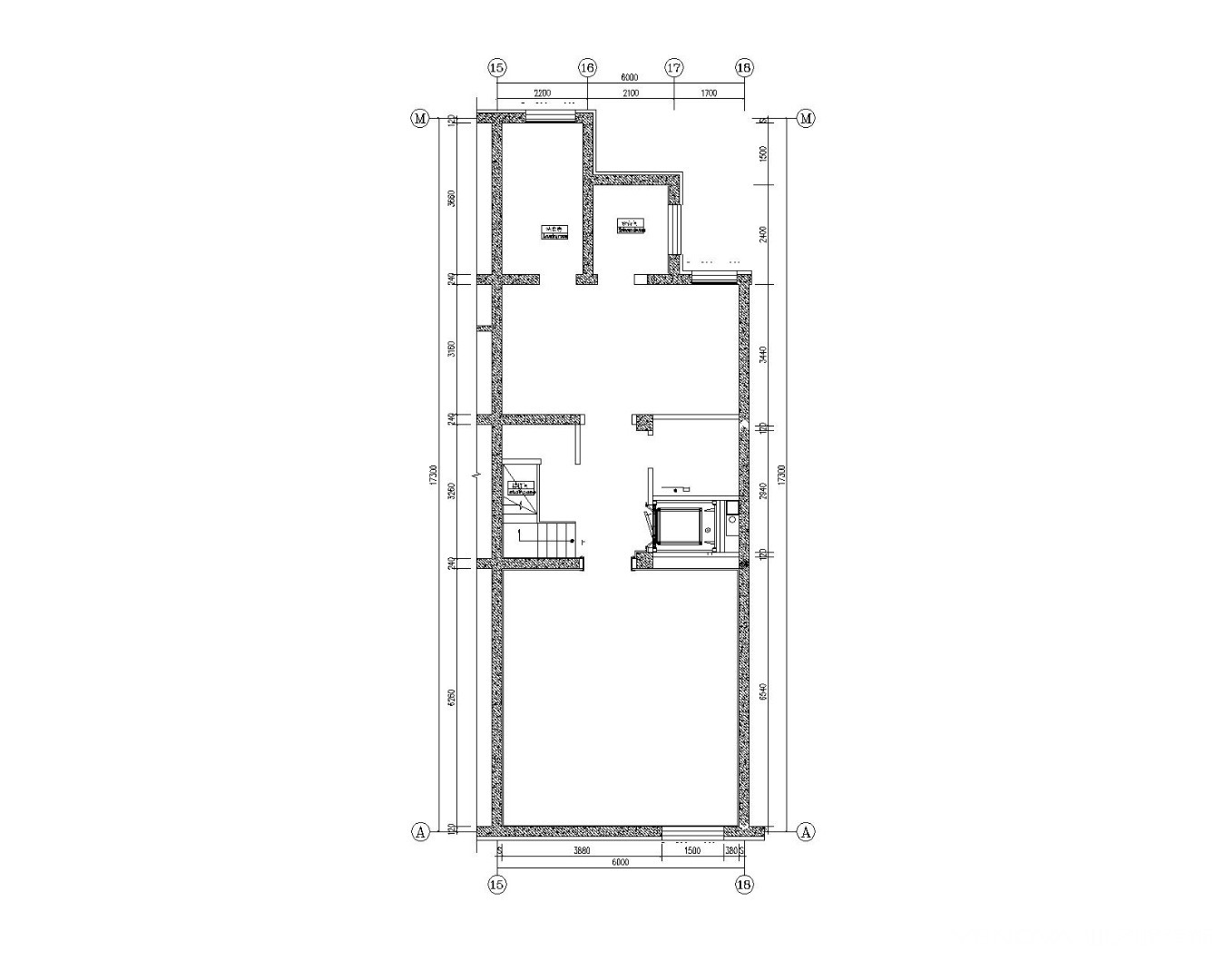
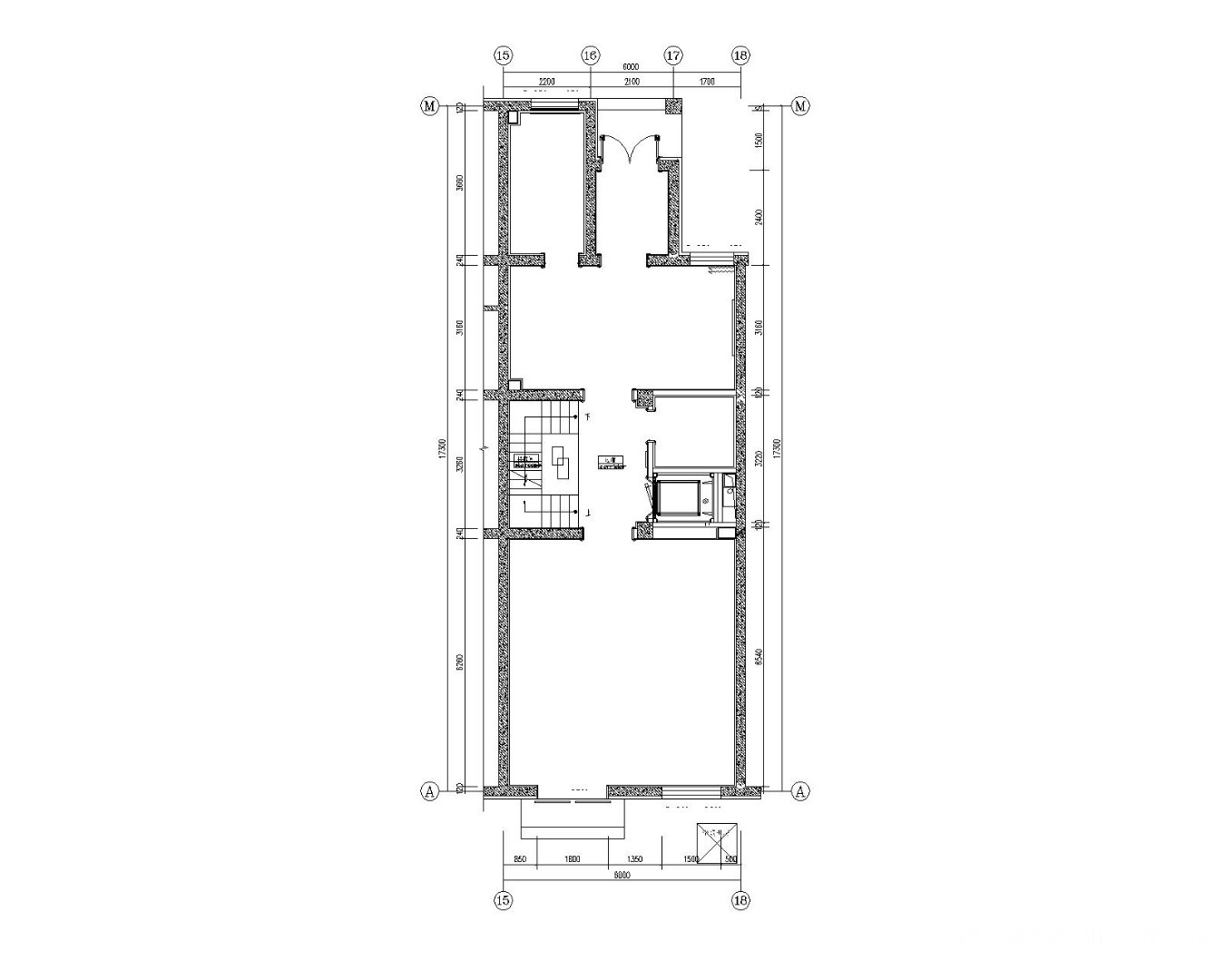
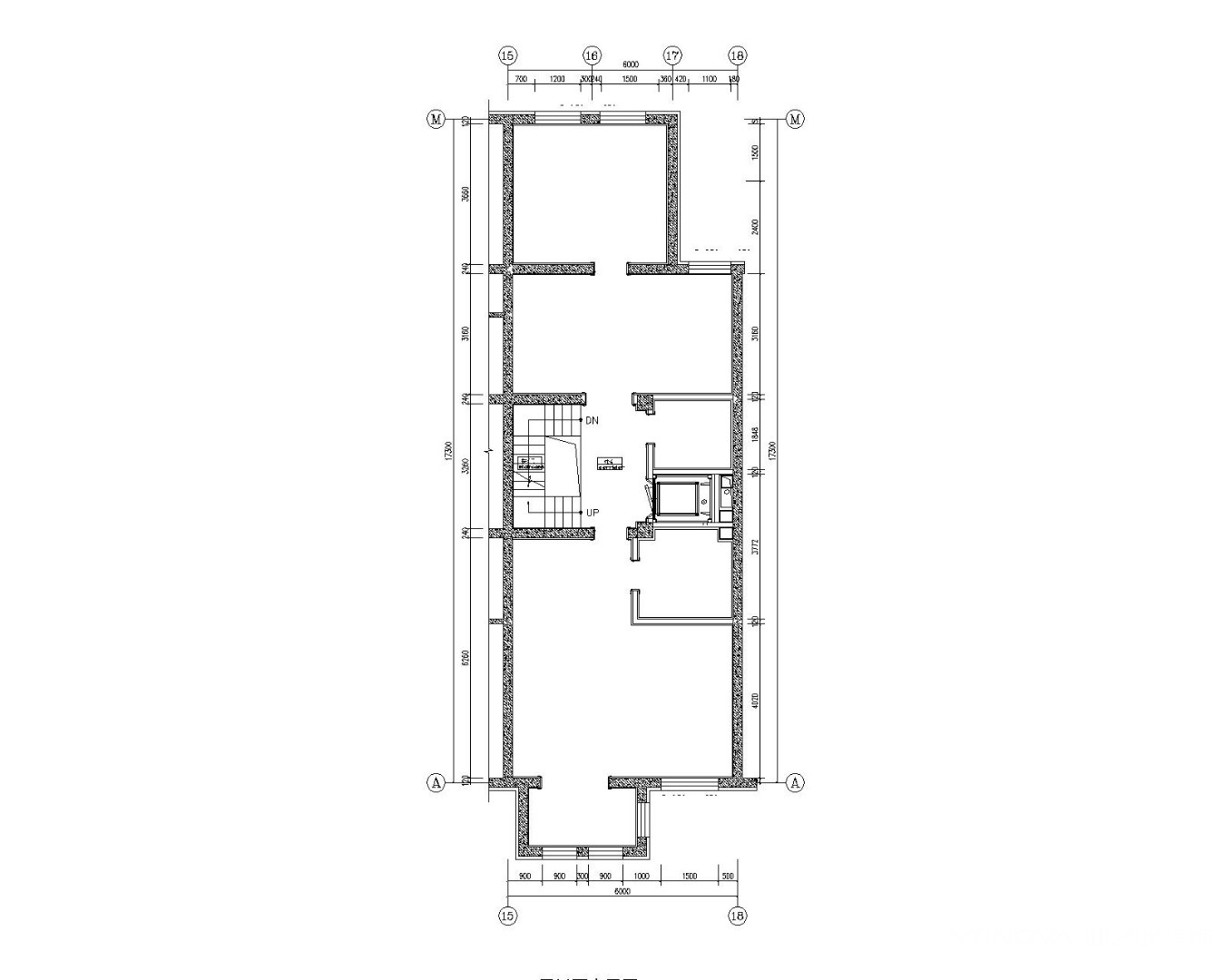
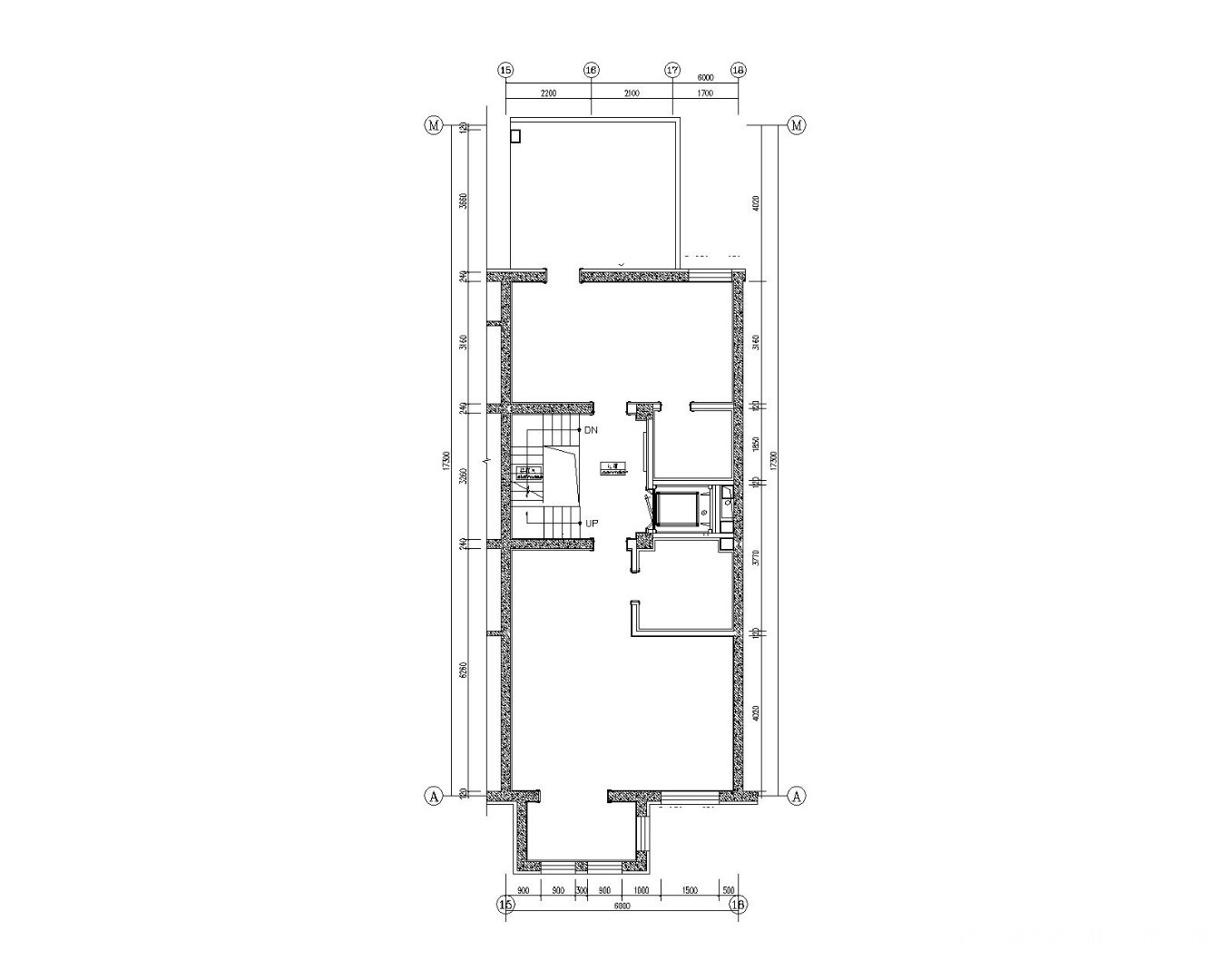
户型图

卧室


客厅






餐厅


休闲区


书房





京公安网备11010502040911