140㎡三居新中式风格天海容天下
发布时间:
2020年12月28日
小区:天海容天下 面积:140㎡ 户型:三居 风格:新中式风格
设计说明
设计师在与客户得沟通过程中,发现客户虽然喜欢中式风格,但感觉过于厚重,所以在跟设计师沟通后在整体得中式风格后加入了一些新东方得元素,使之整体在原有基础上做了一些新得调整,呈现得整体新中式得感觉。
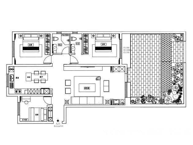
户型图

客厅




餐厅

设计师在与客户得沟通过程中,发现客户虽然喜欢中式风格,但感觉过于厚重,所以在跟设计师沟通后在整体得中式风格后加入了一些新东方得元素,使之整体在原有基础上做了一些新得调整,呈现得整体新中式得感觉。





