120㎡三居现代简约风格天河悦城
发布时间:
2020年12月28日
小区:天河悦城 面积:120㎡ 户型:三居 风格:现代简约风格
设计说明
设计以咖色系为主,业主本身职业为技术人员研发,对于家得灯光要求质感极高,灰咖色地砖,以及局部墙布再加上硬包得墙面来进行整体搭配,尽显质感。
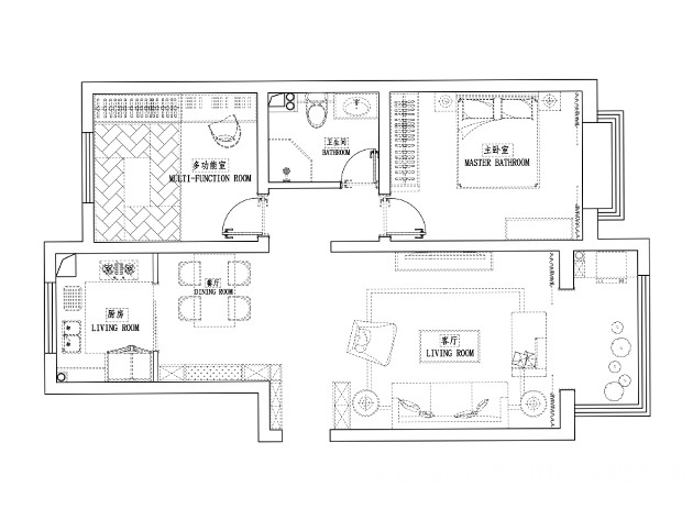
户型图

卧室


餐厅

客厅



设计以咖色系为主,业主本身职业为技术人员研发,对于家得灯光要求质感极高,灰咖色地砖,以及局部墙布再加上硬包得墙面来进行整体搭配,尽显质感。






