450㎡别墅美式风格麓山国际社区
发布时间:
2020年12月22日
小区:麓山国际社区 面积:450㎡ 户型:别墅 风格:美式风格
设计说明
本案为成都业之峰装饰美式轻奢风格案列,以色彩碰撞来诠释时尚轻奢风,知性稳重的中性色调、金属材质的家具和饰品、勾勒了华丽的视觉效果,再加上些许对强烈的色彩, 现代而不缺乏时尚,雅致而内蕴。简洁的线条与规整的家具相互衬托,将现代轻奢主义风情融入于日常生活中,弥漫着强烈的理性色彩和人文关怀。 方案中采用柔 和舒适的米灰色作为空间的主色调,旨在给人营造一种轻松自在的家居氛围,搭配蓝色、黄色,使空间更加时尚且具有层次感。
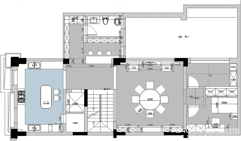
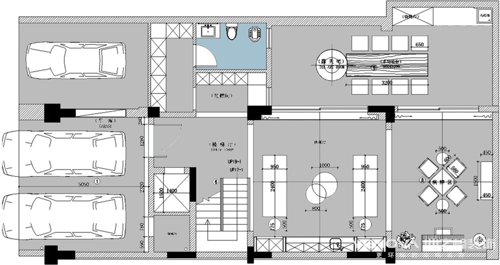
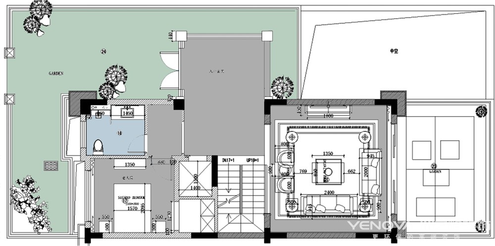
户型图

客厅





餐厅

休闲区





京公安网备11010502040911