北京
【切换】
整屋案例
家居美图
实景案例
装修现场
装修攻略
无数据
搜索
010-84934479
扫码快速拨号 >
扫码快速拨号
首页
效果图
设计师
装修现场
装修攻略
品质保障
了解业之峰
当前位置:
首页
装修图库
案例相册
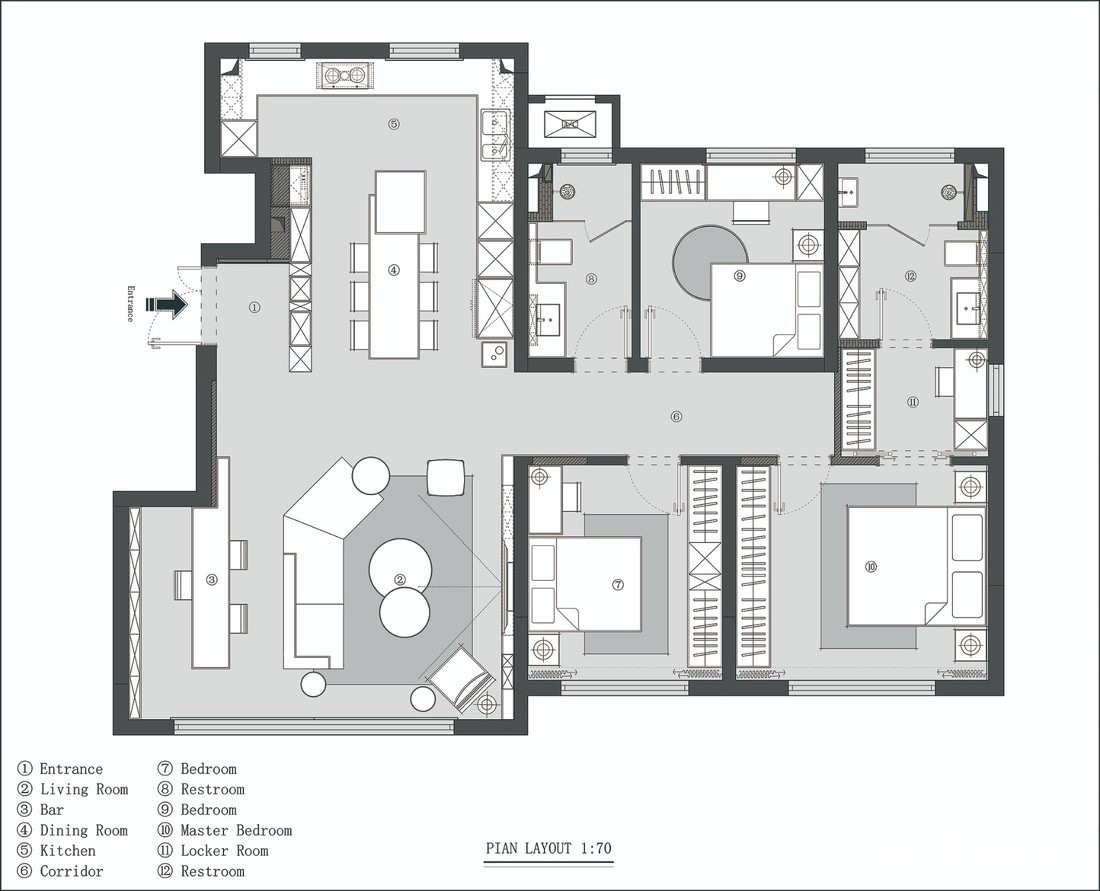
134㎡三居现代简约风格凯悦金沙东城
发布时间: 2020年12月20日
小区:凯悦金沙东城
面积:134㎡
户型:三居
风格:现代简约风格
设计说明
本案原始户型是一套中规中矩的精装房, 自身结构相对合理。 但对于一个四口之家来说, 居住空间就显得过于紧凑, 且储物功能不足、空间缺乏交流感。 结合业主的实际需求情况,
户型图
客厅
餐厅
卧室
卫生间
设计说明
户型图
客厅
餐厅
卧室
卫生间
本案设计师
涂海棠
首席设计师
免费咨询
我家装成这样多少钱?
㎡
获取报价
相关案例推荐
90㎡三居现代简约风格星悦城
查看详情
108㎡三居现代简约风格融创九坤
查看详情
112㎡三居现代简约风格中国城乡香樾洲
查看详情
140㎡三居现代简约风格润兰之城
查看详情
130㎡三居现代简约风格富兴花园
查看详情
130㎡三居现代简约风格宁瑞水乡
查看详情
140㎡三居现代简约风格润兰之城
查看详情
172㎡三居现代简约风格新希望锦麟天玺
查看详情
188㎡三居现代简约风格金泰观澜府
查看详情
110㎡三居现代简约风格万达天御
查看详情
116㎡三居现代简约风格南美韵城
查看详情
110㎡三居现代简约风格剑桥春天
查看详情
90㎡三居现代简约风格物产集团
查看详情
110㎡三居现代简约风格蔚蓝人家
查看详情
92㎡三居现代简约风格静德花园
查看详情
169㎡三居现代简约风格龙湖粼云天序
查看详情
143㎡三居现代简约风格保利天汇
查看详情
123㎡三居现代简约风格高科尚都
查看详情
140㎡三居现代简约风格邮电小区
查看详情
110㎡三居现代简约风格联发悦春山
查看详情
展开
报价计算器
免费量房
免费设计
回到顶部