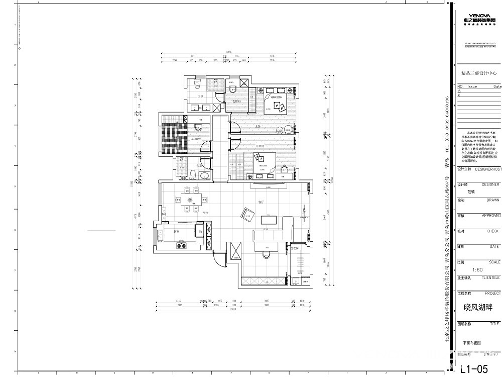
160㎡三居现代简约风格绿城晓风湖畔
发布时间:
2020年12月18日
小区:绿城晓风湖畔 面积:160㎡ 户型:三居 风格:现代简约风格
设计说明
案例名称:李沧区—绿城晓风湖畔—160平—现代风格
小区名称--区域:李沧区 小区名称:鲁信长春花园 楼盘期数:
工程总价:46万元
设 计 师:范铖
设计师级别:精品设计师
装修风格:现代风格
户型:三室一厅两卫
面积:160 M²
主材预算:33万元
清工辅料预算:13万元
户型优缺点分析:
问题:主卧没有衣帽间且不平整,做一字型衣柜并加60cm的石膏板隔墙,加垛做垭口,更加美观,空间利用性更高
户型图

客厅



卧室







京公安网备11010502040911