120㎡三居北欧风格东源晴天见
                  发布时间:
                  2020年12月08日
                
 小区:东源晴天见 面积:120㎡ 户型:三居 风格:北欧风格
设计说明
 业主一家三口,男主人和女主人都是三十岁左右年轻人,男主人是职场白领,女主人是老师。都希望回到家后能获得一份工作外的宁静。
从入户门开始给人宽敞明亮之感,根据户型,将阳台做了一个集收纳、休闲功能一体的空间,闲暇时静坐于此。
客厅-调色的皮质的抱枕、简单的茶几,客厅清新自然、舒适
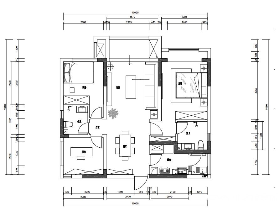
户型图
 
客厅
 


卧室
 
餐厅
 

 


京公安网备11010502040911