135㎡三居新中式风格贻成水木清华
发布时间:
2020年11月17日
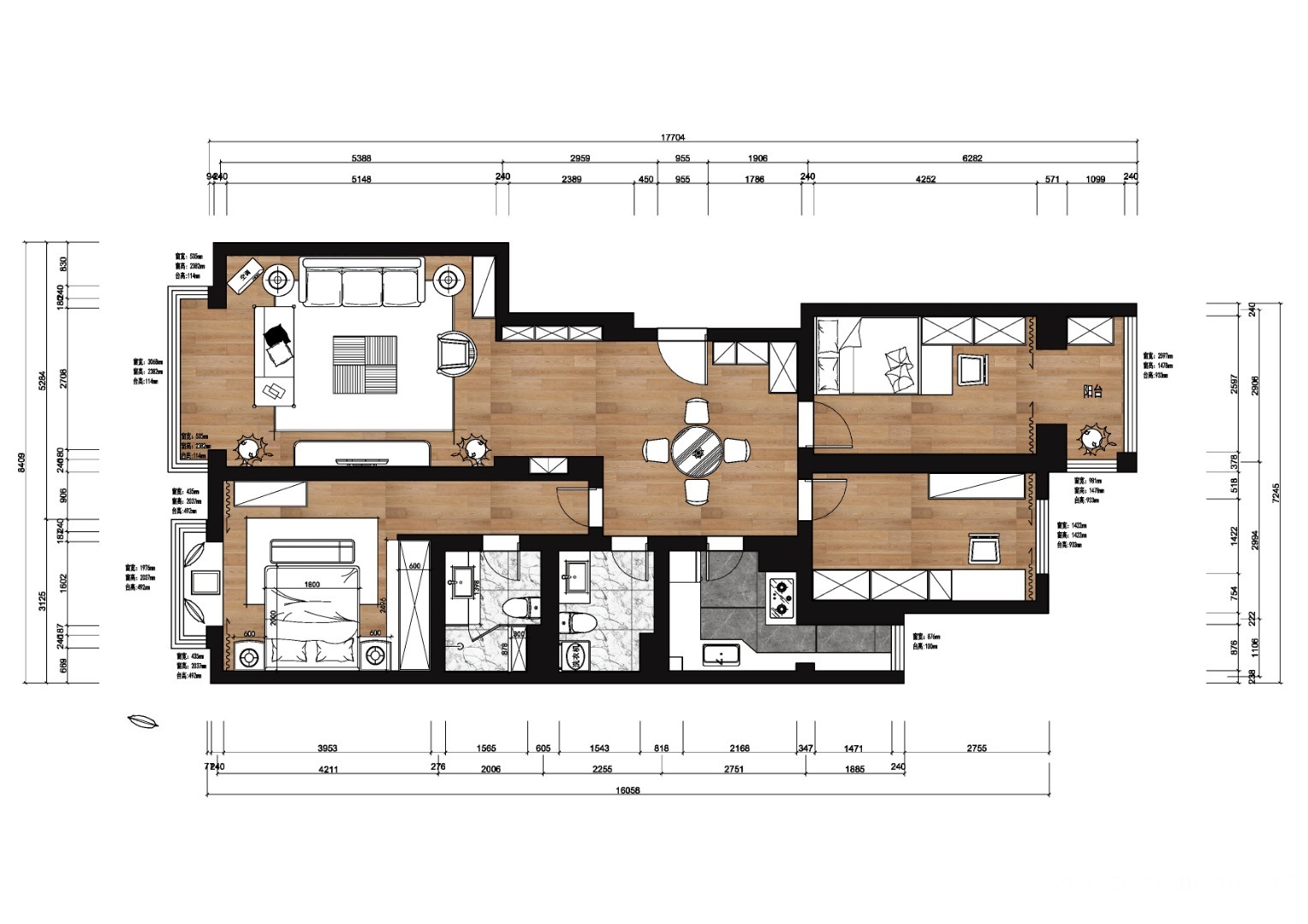
小区:贻成水木清华 面积:135㎡ 户型:三居 风格:新中式风格
设计说明
本案以白色整体搭配木色为主基调,新中式注重简约一中式的结合,根据业主不同的需求,家具配饰等方面的结合就闲的相当重要,本案中式元素相对较多,有大部分中式的小部分简约的形式来展现。加上配饰的点缀,保证整体基调和谐一直。
户型图

卧室

客厅




餐厅





京公安网备11010502040911