170㎡四居其他水城庄园·文景城
发布时间:
2020年11月08日
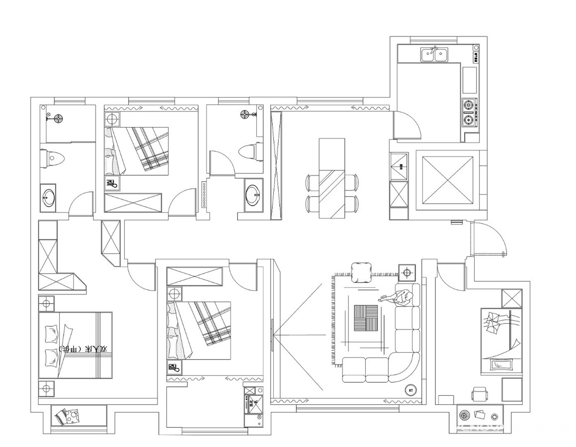
小区:水城庄园·文景城 面积:170㎡ 户型:四居 风格:其他
设计说明
现代轻奢风格是一种极致的简约风格,它摒弃了传统意义上的奢华,简化装饰,返璞归真,注重硬装修手法的简洁,但也并不像一般的简约风格那样随意看似简洁,朴素的外表之下却常常折射出一种隐藏的贵族气质所以又给人时尚前卫、气质优雅且不失温馨舒适的感觉。
户型图

客厅




卧室


餐厅


书房






京公安网备11010502040911