147㎡三居新中式风格天山熙湖
发布时间:
2020年11月04日
小区:天山熙湖 面积:147㎡ 户型:三居 风格:新中式风格
设计说明
中式具有中国传统风格文化意义在当前时代背景下的演绎,是对中国当代文化充分理解基础上的当代设计。中式是传承传统中式风格的精髓,通过与现代潮流的对话碰撞而产生的创新。软装色彩上以中国红和黛蓝色作为点缀,中国红,中国传统颜色,山川之间,黛若苍穹 在大气的灰色调子中,用之点缀,起明朗之效果。典雅的色调,精致的细节,充满中式底蕴的文化表现,是锦粹,锦上添花的美感。在软装上采用了棉麻,丝光,金属,木材等高品质贴切生活的材质诉说着新中式、新艺术的生活态度,通过盆景等自然元素带来的依靠感,坚强感,生机感,整个空间塑造出沉稳安静的格调,散发着舒缓的意境,休息会客舒适自如。
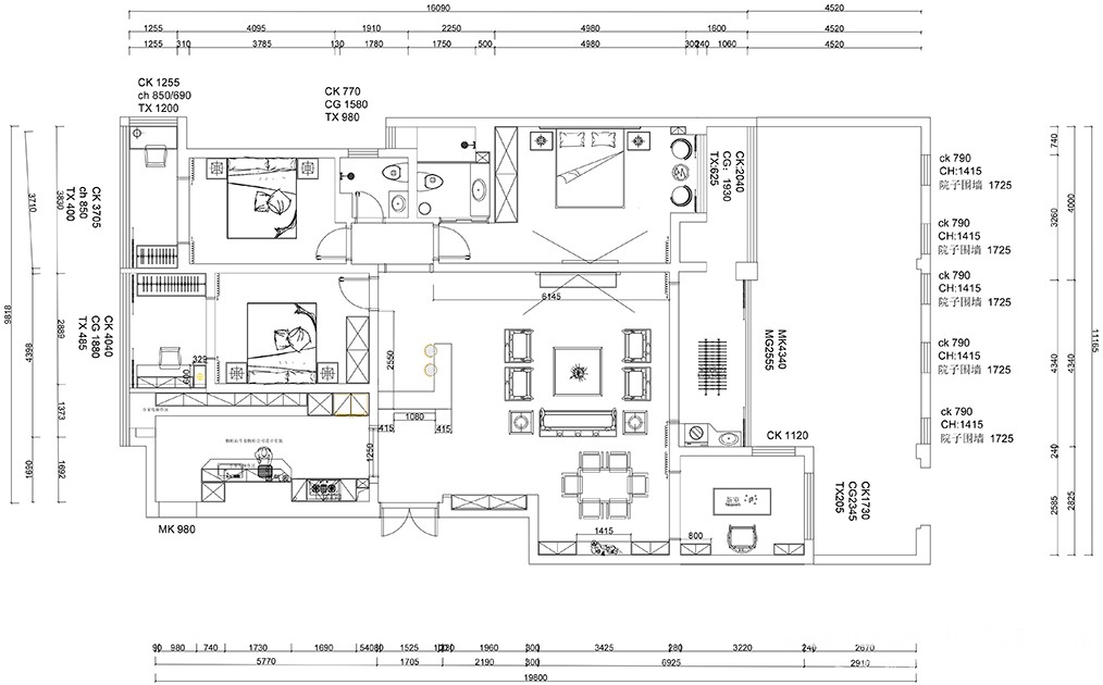
户型图

客厅



卫生间

厨房

休闲区

卧室

阳台

玄关

儿童房





京公安网备11010502040911