137㎡三居美式风格万景国际
发布时间:
2020年11月04日
小区:万景国际 面积:137㎡ 户型:三居 风格:美式风格
设计说明
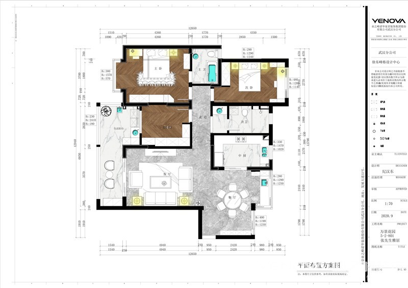
本案户型方正,南北通透,南边一大阳台面积很大,结合客户需求,给客户把阳台划分为两个部分,一部分为洗衣晾晒阳台使用,一部分为休闲阳台使用,定制茶水柜和休闲椅组合椅的布置。业主喜欢的是那种复古优雅的美式风格,入门处设置换鞋凳、鞋柜组合定制柜,功能齐全兼顾家庭生活的收纳储物的需求。客厅的布局和家具的选用都是遵循复古大气的原则,深色实木家具,加上电视背景墙和沙发背景墙的美式线条的对称,突显出美式风格的复古优雅感,电视背景墙采用两边实木护墙板,中间花鸟壁画的结合,复古美式的优雅感立马呈现。餐厅的吊顶设计依据实际梁的位置高度又人为的制作一个假梁,分成三个长方形空格依次排列,一进门感觉整个空间是开阔延展的,同时这个吊顶的设计和过道吊顶的设计争相呼应。主卧空间床头背景墙也同样采用两边护墙板,中间素色壁画点缀,让人觉得优雅宁静。整个户型空间墙面采用护墙板、线条、壁画相结合,地面采用浅色地砖配合波打线,加上实木家具、软装摆件的材质、颜色的搭配,让整个空间复刻出一种复古优雅的美式风格。
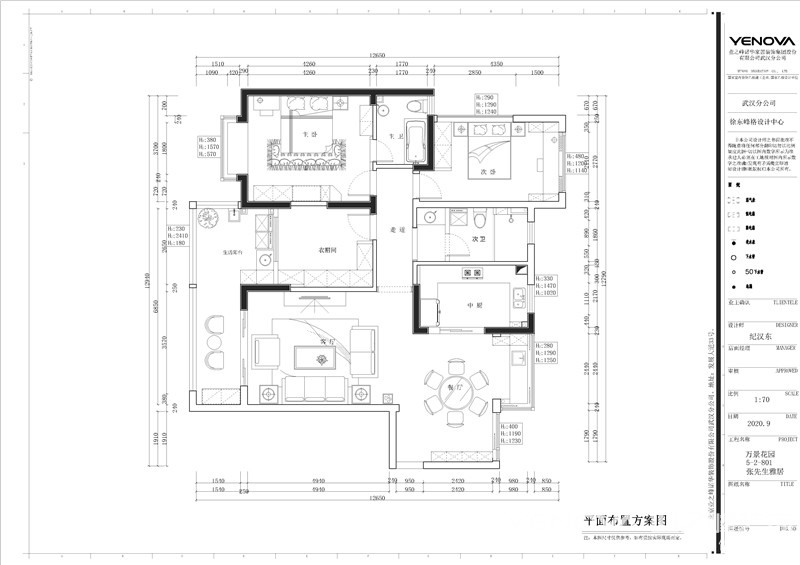
户型图

餐厅

卧室




客厅







京公安网备11010502040911