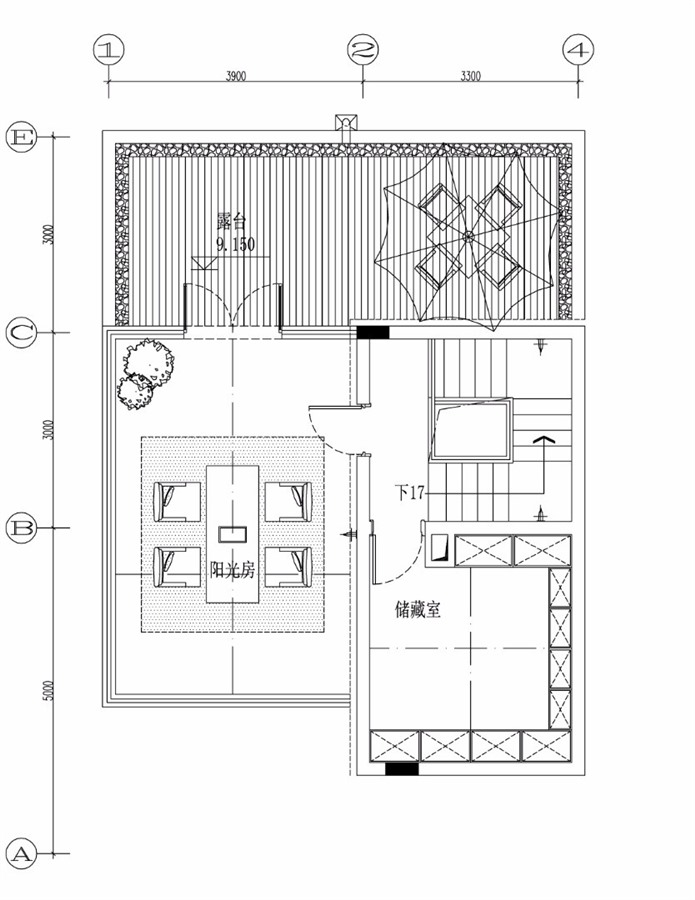
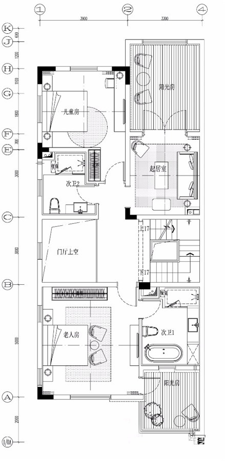
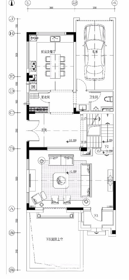
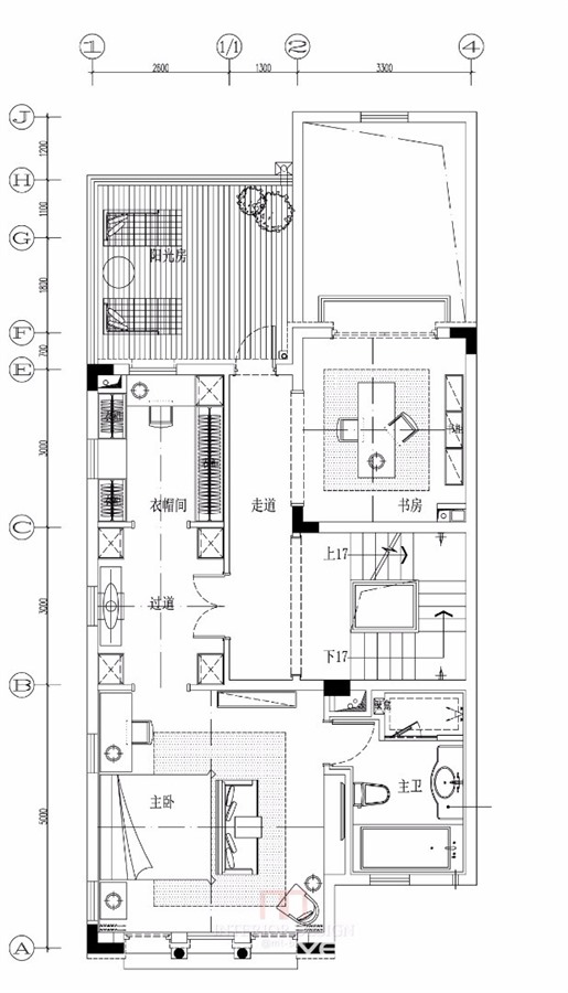
320㎡别墅美式风格东原香山
发布时间:
2020年10月24日
小区:东原香山 面积:320㎡ 户型:别墅 风格:美式风格
设计说明
设计师说:在接到这套房子的设计时,客户说房子要居住很多年也可能是一辈子,我希望我的家是厚重大气舒适的,同时要经得起时间沉淀的,若要论经典,中式,美式,法式。我更倾向于美式......
整体走的乡村美式风,以舒适为主。硬装整体大色调是白暖。软装选用经典的胡桃色美式家具搭配,带一点点地中海的气息。
不需要繁琐的装饰,在墙面上一个点睛之笔就足够让家里显得简约而不简单,就比如门框。除去一成而就的方形门洞设计师在搭配时用到更具有设计感和体现家里层次感的线条。在卧室的过道门洞采用拱形门。室内线条更加柔和。
客厅















京公安网备11010502040911