155㎡三居美式风格融创中心
发布时间:
2020年10月20日
小区:融创中心 面积:155㎡ 户型:三居 风格:美式风格
设计说明
本套方案为美式风格,美式家具一般采用胡桃木和枫木,为了突出木质本身的特点,它纹理本身成为一种装饰。可以在不同角度下产生不同的光感。这使美式家具比金光闪耀的欧式家具更耐看。
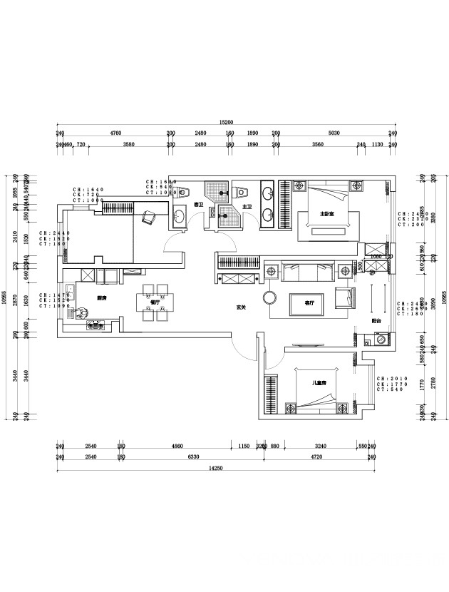
户型图

玄关

客厅




厨房

餐厅


本套方案为美式风格,美式家具一般采用胡桃木和枫木,为了突出木质本身的特点,它纹理本身成为一种装饰。可以在不同角度下产生不同的光感。这使美式家具比金光闪耀的欧式家具更耐看。








