93㎡三居新中式风格东湖雅庭
发布时间:
2020年10月20日
小区:东湖雅庭 面积:93㎡ 户型:三居 风格:新中式风格
设计说明
本案例为新房装修,房子是由铁路局分配的单位房,顾客是我们之前一位客户的大哥,由她介绍给我们设计师的,顾客非常直爽,我们的交流也非常愉快。
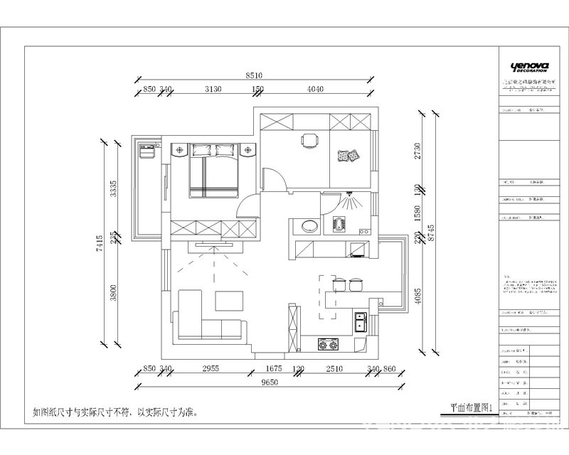
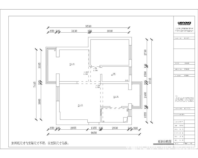
首先,顾客要求保留两间卧室,即主卧和次卧。经过2个小时的细致量房勘测后,我们设计师设计了3套改造方案,在与顾客的沟通中,结合顾客一些自己的想法以及我们设计师提供的建议,顾客最终敲定了平面方案。
户型图

卧室

客厅





餐厅





京公安网备11010502040911