300㎡别墅现代简约风格汉南碧桂园
发布时间:
2020年10月19日
小区:汉南碧桂园 面积:300㎡ 户型:别墅 风格:现代简约风格
设计说明
以艺术为基点,展开轻奢质感开阔的空间动线,带来的不仅是一种视觉享受,同时也是一种低调奢美的生活体验。
生活需要有热情的情调,需要柔情的情调,需要温馨的情调,有情调反映了生活的艺术。
这是一间经过现代而永恒的风格调整的住宅,由于住宅位于长江边上,因此住宅本身也越来越具有吸引力。
这套家庭住宅公寓看起来干净宽敞,时尚与质感生活的融合,色彩柔和雅致,摒弃浮夸的线条和装饰,
还原材质的本来美感,优美简洁的线条,简洁实用的家具,利用灯光的运用设计,营造舒适又充满灵感的生活空间。
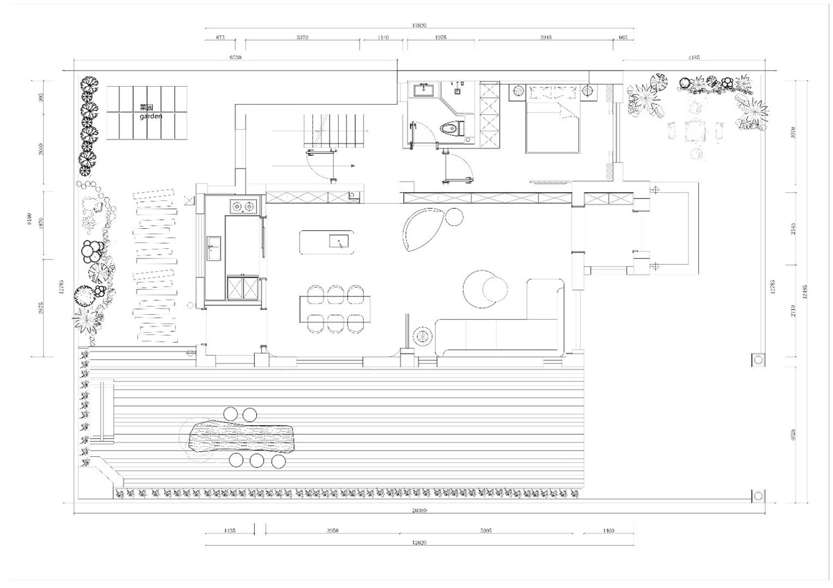
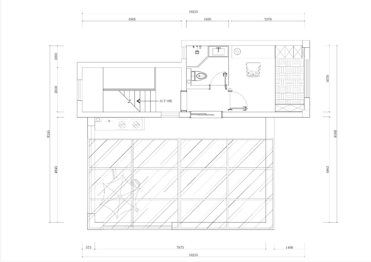
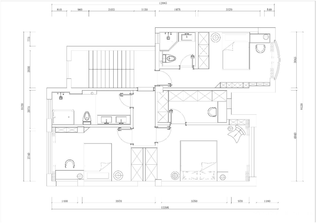
户型图

客厅






厨房

餐厅





京公安网备11010502040911