168㎡复式欧式风格清凉山居
发布时间:
2020年10月08日
小区:清凉山居 面积:168㎡ 户型:复式 风格:欧式风格
设计说明
小区位于西安市长安区。本方案在设计上追求功能与形式完美统一,优雅独特,简洁明快的设计风格。针对这一主题,设计上以协调各功能空间的使用要求为目的,布局上力求合理,功能上力求完备,动线计划上争取做到畅通合理,满足功能要求,同时又给人以艺术之美感。创造出空间美,简洁的面与面结合,虚与实的对比,简单的线条。通过高品质的材料与精细的做工来表达一种生活的态度。针对上班族,设计采用简约明朗的线条,将空间进行了合理的分隔。面对扰嚷的都市生活,一处能让心灵沉淀的生活空间,是本房业主心中的一份渴望,也是本设计在该方案中所体现的主要思想。因此,开放式的大厅设计给人以通透之感,避免视觉给人带来的压迫感,可缓解业主工作一天的疲惫。没有夸张,不显浮华,通过过于干干净净的设计手法,将业主的工作空间巧妙地融入到生活空间中。
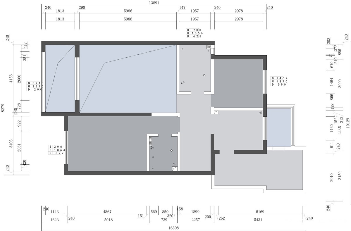
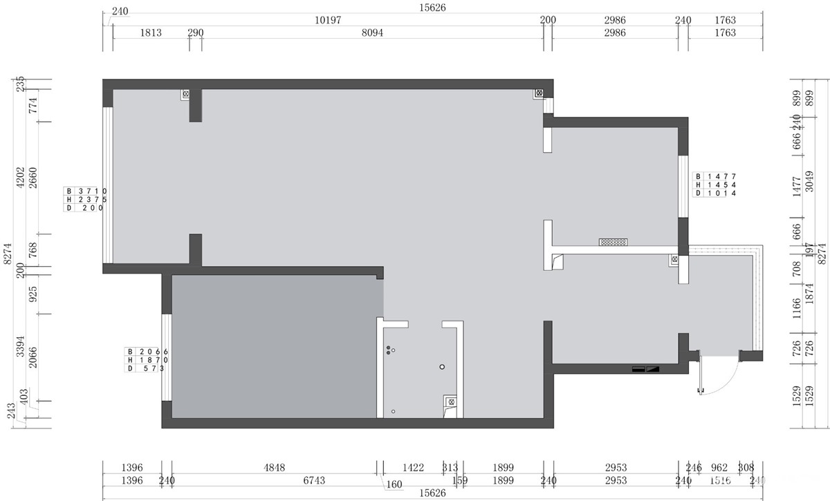
户型图

客厅





卧室

书房

玄关

休闲区






京公安网备11010502040911