177㎡四居美式风格德贤公馆
                  发布时间:
                  2020年10月08日
                
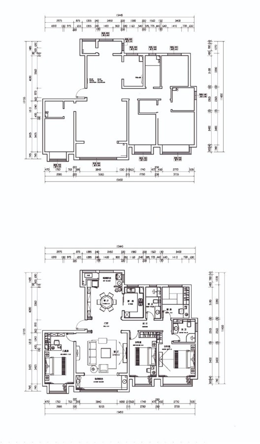
 小区:德贤公馆 面积:177㎡ 户型:四居 风格:美式风格
设计说明
 入户玄关体系的规划有鞋柜收纳,满足入户坐立需求,铜制金属屏风,将空间软性隔断,本案的居住者设计要求上,尽可能的华丽,温馨满足,老年人的居住需求。在主色调的处理上以象牙白,铜线,以及设计美式简化壁炉护墙板,诠释都市新贵开启生活新篇章的风范和品味。
户型图
 
客厅
 


餐厅
 
卧室
 

儿童房
 

 


京公安网备11010502040911