188㎡复式现代简约风格碧桂园.国湖
发布时间:
2020年10月08日
小区:碧桂园.国湖 面积:188㎡ 户型:复式 风格:现代简约风格
设计说明
本案国湖碧桂园位于西安高长安区镐京大道。本方案为188㎡三室一厅的居室设计,业主为一对年轻夫妇。针对上班族的业主,设计师采用简约明朗的线条,将空间进行了合理的分隔。面对扰嚷的都市生活,一处能让心灵沉淀的生活空间,是本房业主心中的一份渴望,也是本设计在该方案中所体现的主要思想。因此,开放式的大厅设计给人以通透之感,避免视觉给人带来的压迫感,可缓解业主
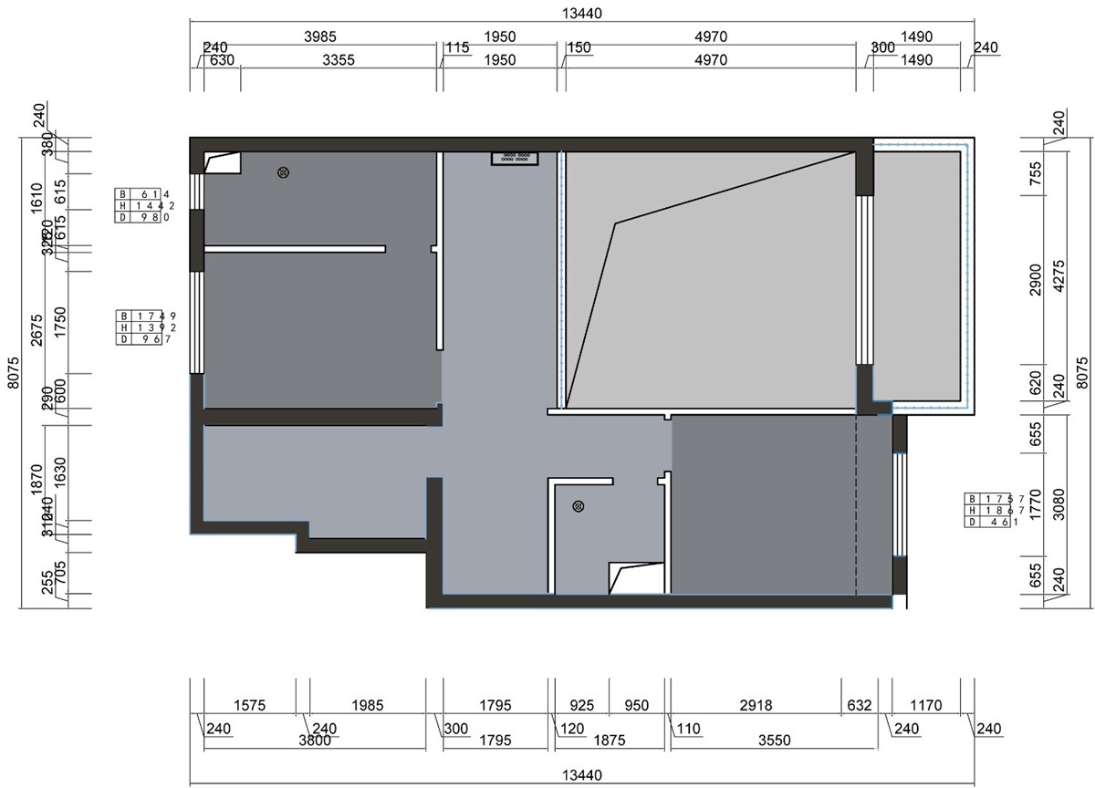
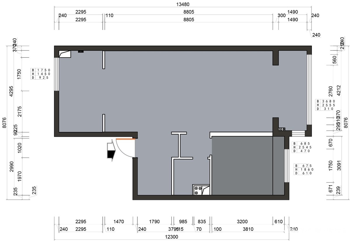
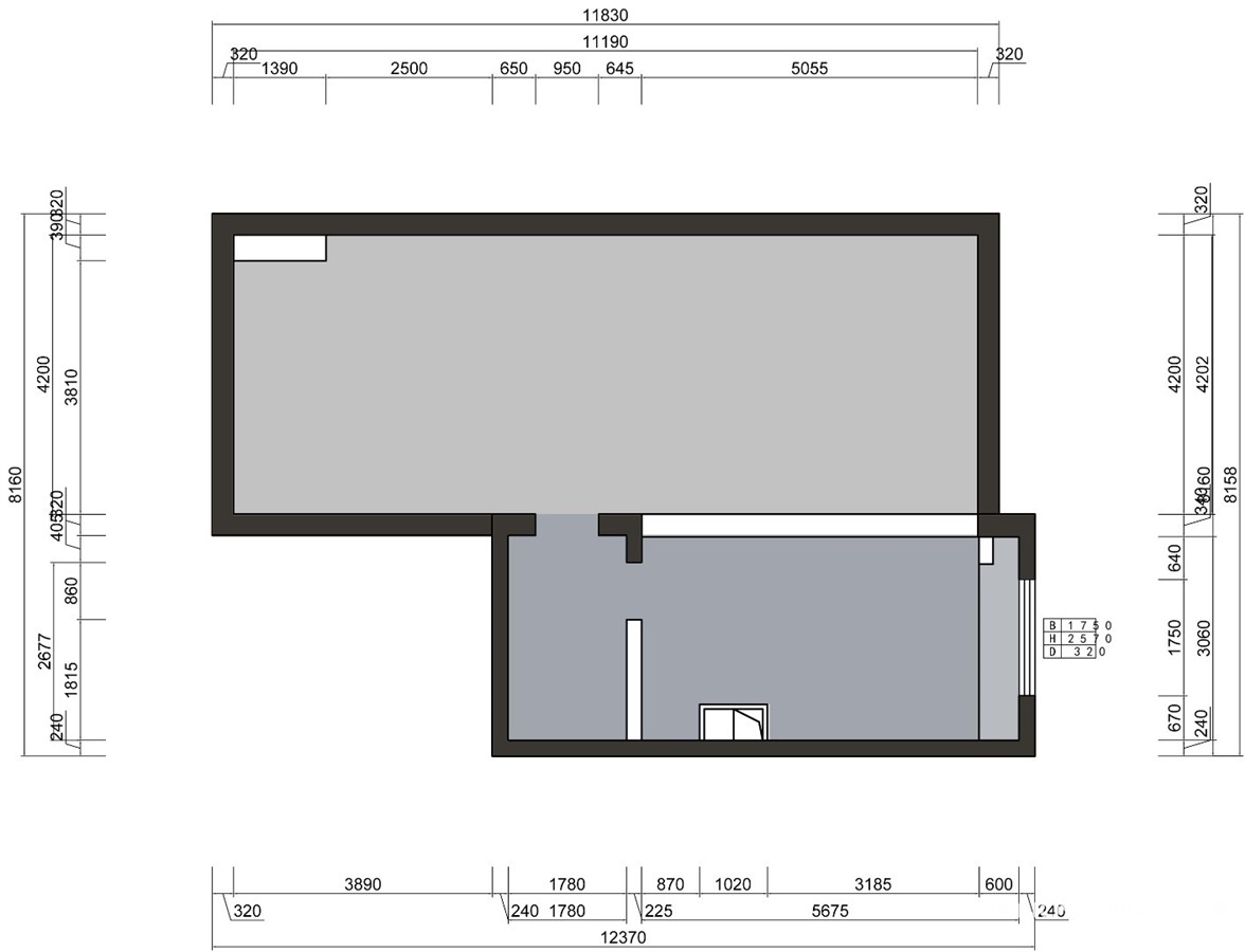
户型图

客厅





餐厅

玄关

书房

卫生间



卧室





京公安网备11010502040911