500㎡别墅新中式风格秦岭别墅
发布时间:
2020年10月08日
小区:秦岭别墅 面积:500㎡ 户型:别墅 风格:新中式风格
设计说明
本案业主是位老人家,改住宅用来阖家度假、休闲之所,户外有停车场,花园,室内有茶室、酒窖、影音室、瑜伽室,集居住、休闲于一体,负一楼是保姆活动区及休闲区,一楼是会客公共区,二三楼主要是个人私密空间,整体设计采用新中式风格,大幅水墨画悬挂于客厅沙发背景,与秦岭的山水融为一体,写意而惬意,黑胡桃木为木作主色调,窗帘、地毯、画品、花品等软饰的搭配,尽显了主人的个人爱好及性格特点,优雅、沉稳而不失灵动。
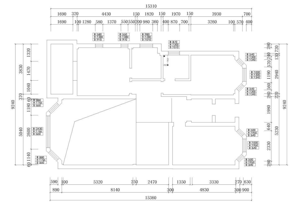
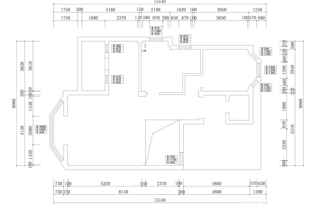
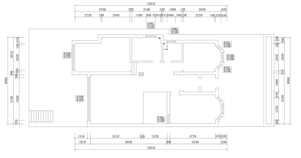
户型图

客厅






休闲区




玄关

餐厅

卧室


阳台

卫生间





京公安网备11010502040911