210㎡别墅美式风格绿地骊山花城
                  发布时间:
                  2020年10月08日
                
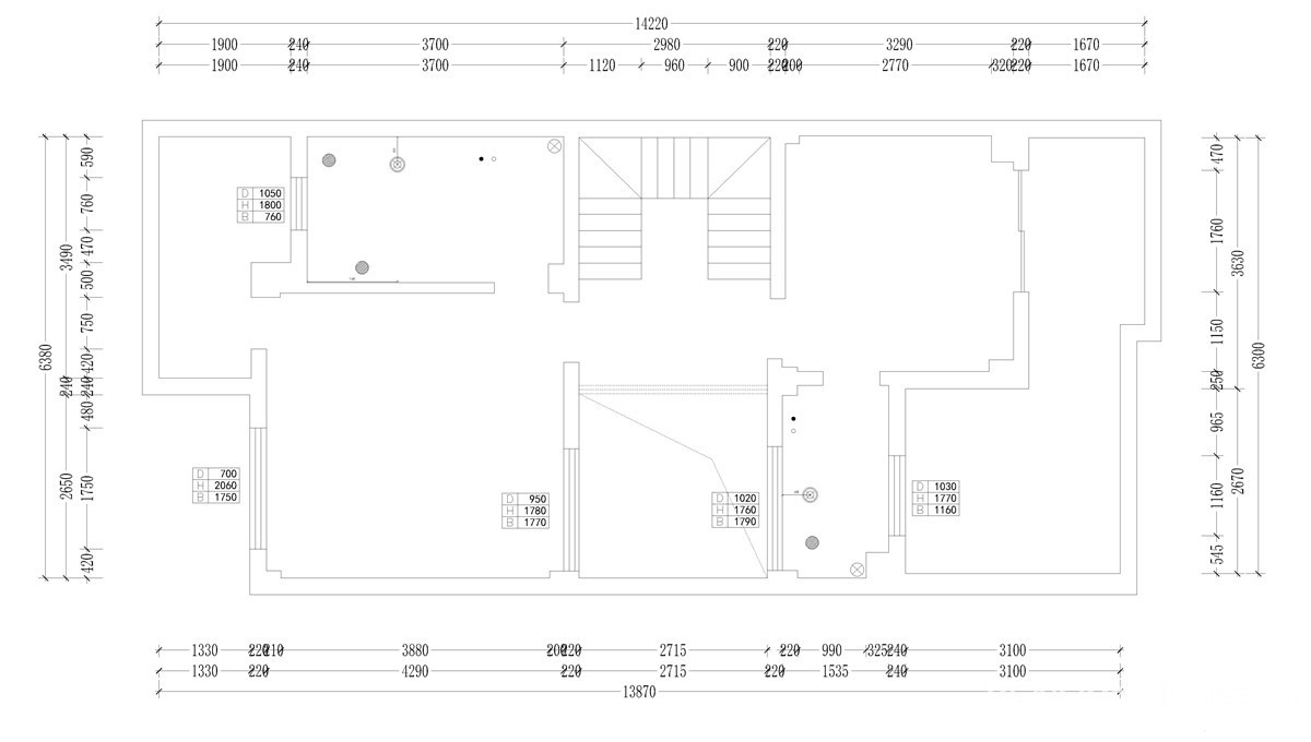
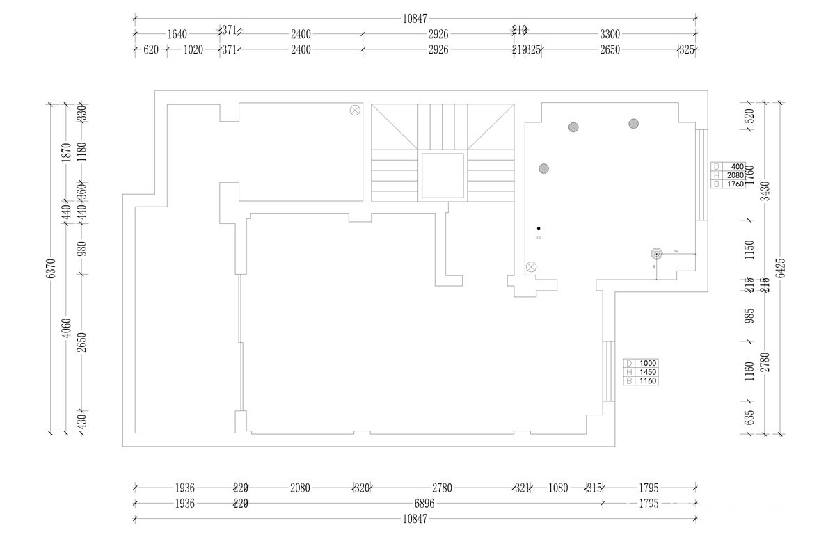
 小区:绿地骊山花城 面积:210㎡ 户型:别墅 风格:美式风格
设计说明
 本案业主均是医生,声称辛苦工作多年,老了希望能在舒适、气派的的居家氛围中养老,平时种种花,偶尔约三五好友来小聚,一楼为会客区,采用线条形式勾勒出美式的元素,主材采用石材、护墙板、壁纸、硬包等,二楼为主人居住区,采用硬包、壁纸及护墙板和木地板体现出家庭的温馨感,三楼为孩子居住,由于孩子个性化要求,不喜欢美食的繁复,故用现代的设计手法,彰显年轻活力、动静皆宜
户型图
 
客厅
 




书房
 

卧室
 

 
 


 京公安网备11010502040911
京公安网备11010502040911