180㎡三居现代简约风格中海御湖世家
发布时间:
2020年09月22日
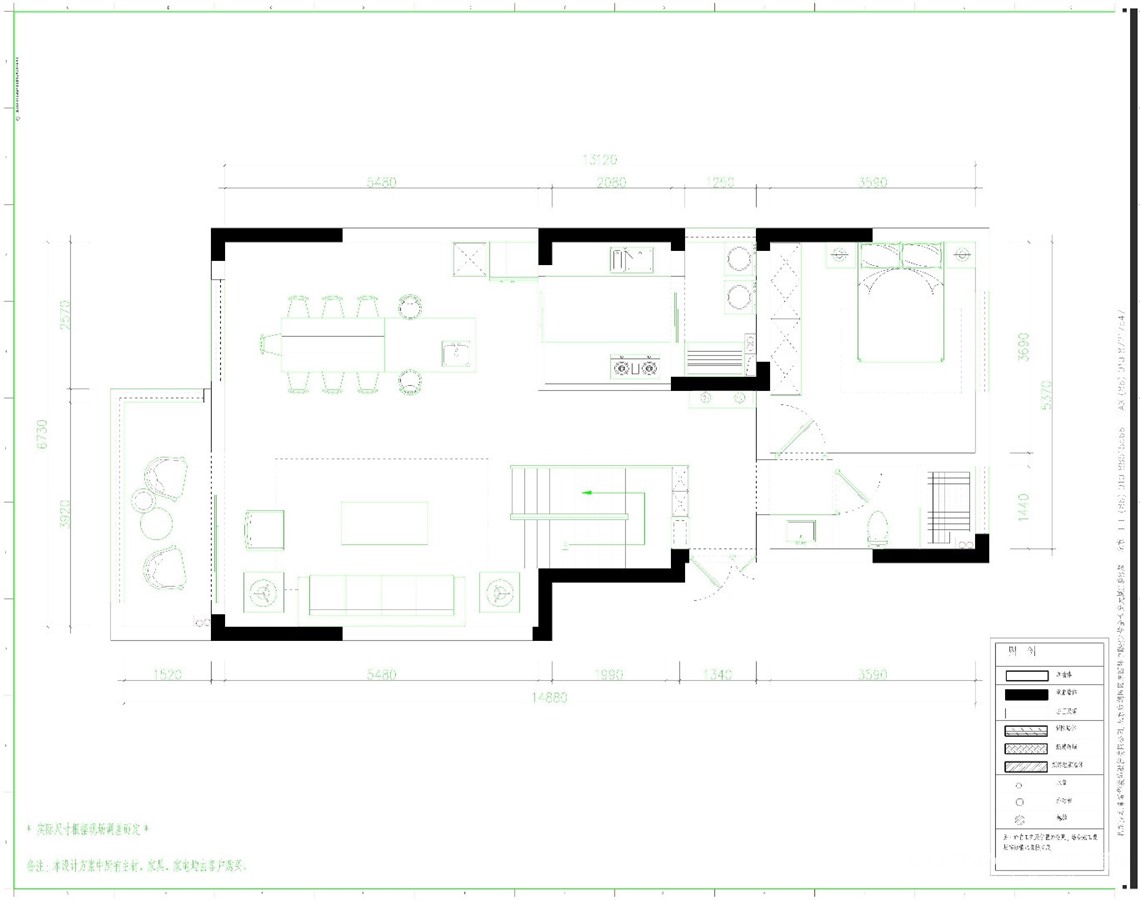
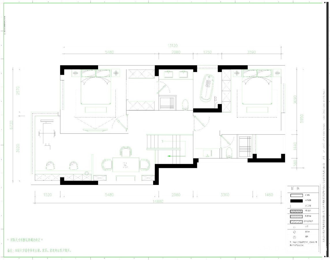
小区:中海御湖世家 面积:180㎡ 户型:三居 风格:现代简约风格
设计说明
在设计中以香槟金和灰色为主色调,倾向于高雅的色彩,让整体空间显得简约、时髦且富有轻奢气质;背景墙装饰柜低调轻奢,深色的木纹的天然纹理于细节中彰显质感。大面积的落地窗,也悄悄然,延展了整个空间。在布局上以动静分区划分,讲究空间的对称性,使得房屋看起来整齐划一;在设计中还采用了很多现代元素,简易的家具搭配可以在呈现空间温馨大气的格调之余,又牵引出浓浓的时尚高雅范儿。
户型图

客厅




卧室






京公安网备11010502040911