94㎡三居混搭风格保利西子城
发布时间:
2020年09月15日
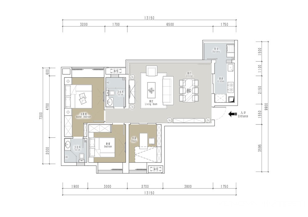
小区:保利西子城 面积:94㎡ 户型:三居 风格:混搭风格
设计说明
本案例为港式风格,整个空间采用灰色为主色调,白色、黑色为辅色,搭配孔雀蓝、,墨绿、暖黄色等跳色,渲染出休闲的居家氛围,设计中对材质、空间、色彩严格要求展现出优雅时尚的气质,简约个性的装饰,灵动精致与设计感的巧妙结合,塑造出的轻奢空间兼具生活所需的所有高品质格调。整体宽敞自然的设计,通过色彩明暗的搭配,让整体的装修都呈现出港式风格独有的设计感。设计师希望业主家里的每一点每一滴每一处,都不随波、不盲从,给业主一份精致的港式生活空间。
户型图

客厅



餐厅

卧室





京公安网备11010502040911