300㎡四居新中式风格逸翠园
发布时间:
2020年09月15日
小区:逸翠园 面积:300㎡ 户型:四居 风格:新中式风格
设计说明
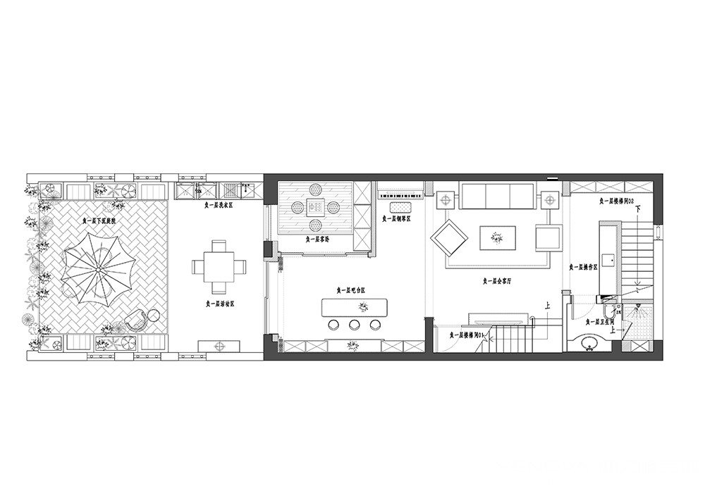
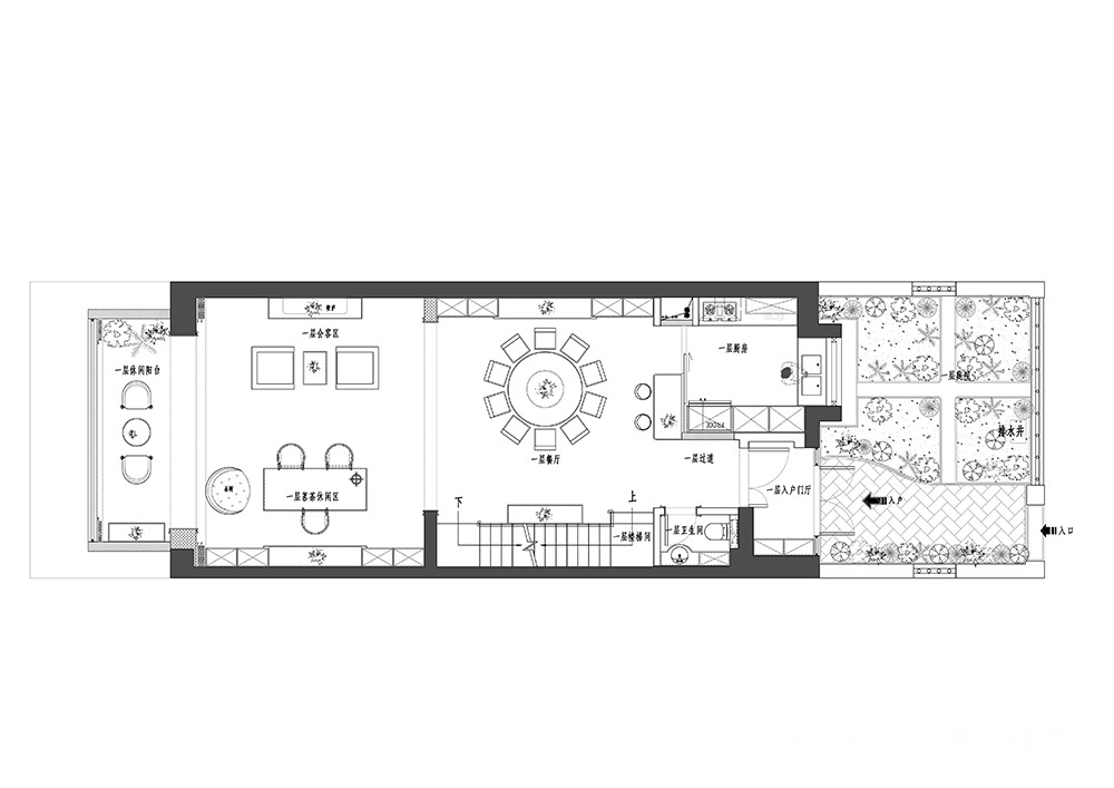
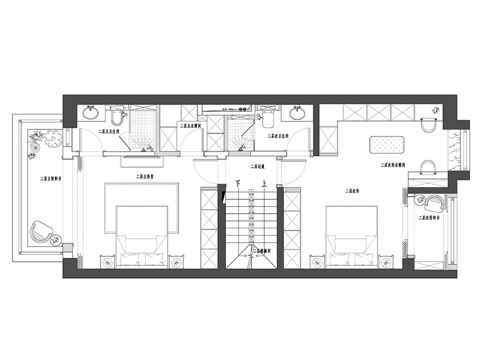
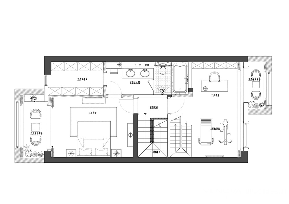
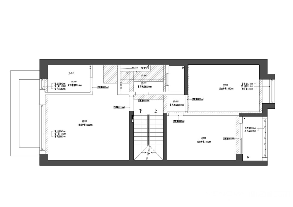
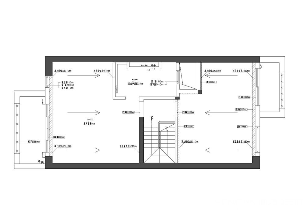
客户是年轻的女性,有一个孩子。客户喜欢新中式韵味但是又喜欢港式的靓丽,本方案主体采用中式元素,但是在材料搭配上玻璃与亮光面的见光板,增加了空间的时尚与靓丽的色彩。在空间改造上,客户并没有选择安装电梯,把空间让给了卫生间增加生活的舒适感,1~2层作为生活功能区,二层划分成两个卧室,一个作为孩子的房间,一个作为客卧作为备用,三层作为主卧与书房,在面积上充分利用了每一寸空间。
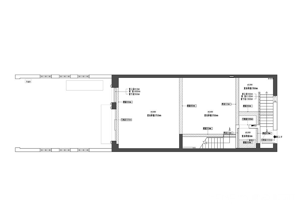
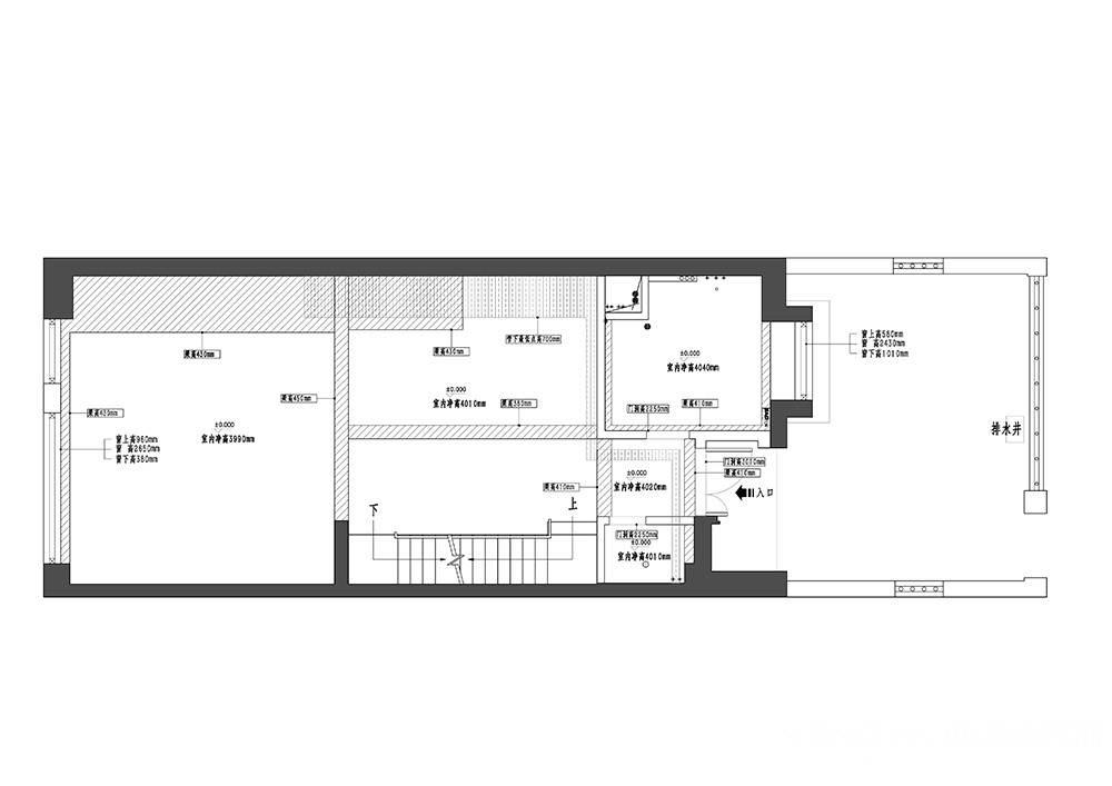
户型图

休闲区


卧室


客厅









餐厅





京公安网备11010502040911