150㎡四居现代简约风格金辉融侨城
发布时间:
2020年09月15日
小区:金辉融侨城 面积:150㎡ 户型:四居 风格:现代简约风格
设计说明
本案运用天然大理石,高光烤漆柜子,设计简洁、直接、功能化且贴近自然,是一份现代感很强,宁静温馨的现代简约设计。
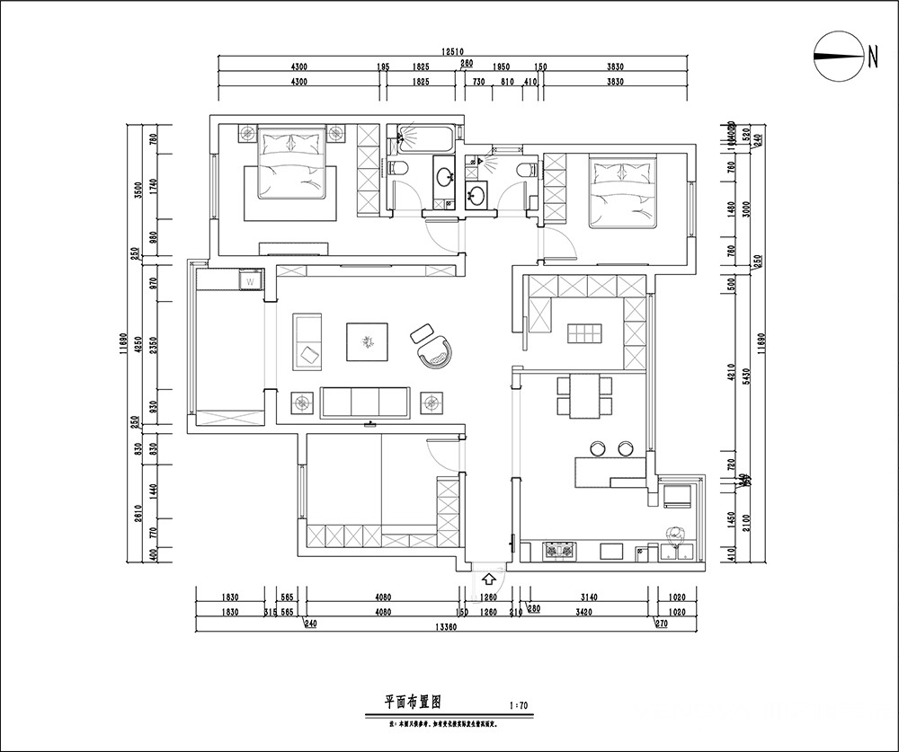
户型图

卧室



餐厅

客厅




衣帽间

本案运用天然大理石,高光烤漆柜子,设计简洁、直接、功能化且贴近自然,是一份现代感很强,宁静温馨的现代简约设计。









