136㎡三居现代简约风格荣盛城
发布时间:
2020年09月14日
小区:荣盛城 面积:136㎡ 户型:三居 风格:现代简约风格
设计说明
在设计上提炼了其中经典元素并加以简化和丰富,在家具形态上更加简洁清秀,同时又打破了传统中式空间布局中等级、尊卑等文化思想,空间配色上也更为轻松自然。
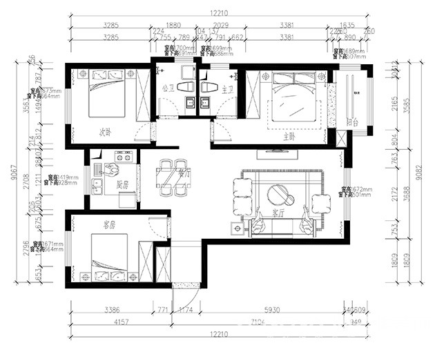
户型图

餐厅

客厅





卧室

在设计上提炼了其中经典元素并加以简化和丰富,在家具形态上更加简洁清秀,同时又打破了传统中式空间布局中等级、尊卑等文化思想,空间配色上也更为轻松自然。







