300㎡别墅新中式风格南湖意境
发布时间:
2020年08月11日
小区:南湖意境 面积:300㎡ 户型:别墅 风格:新中式风格
设计说明
新中式,每一个设计师对它的理解与运用都不尽一样,那正说明了新中式的包容性,就中式色彩就应该可以写上几百页的说明。新中式从狭义上来看,它是将现代元素和中式传统元素结合在一起,以现代人的审美需求来打造具有传统韵味的事物,旨在传承传统艺术的脉络与精神。
本次设计的现代新中式,不同于其他,它承载着更多的家庭和谐:亲子互动、交流与柔情、等等,在此基础上我们更希望这空间从传统中式的内敛、深韵、安静中解放出来,更理性与严谨、更精致与当代。但一定保留的是新中式风格作为东方美学的进化论,它的情结,它君子般的情怀。
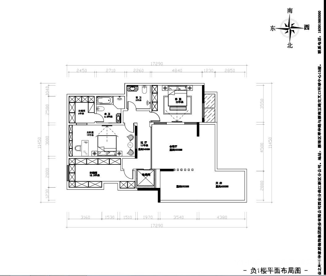
户型图

卫生间

卧室

楼梯

餐厅

厨房

客厅











休闲区

书房





京公安网备11010502040911