170㎡复式混搭风格大华锦绣前城
发布时间:
2020年08月11日
小区:大华锦绣前城 面积:170㎡ 户型:复式 风格:混搭风格
设计说明
混搭装修风格与其他装修手法的最大不同,就在于其独特而又个性的设计理念。混搭装修风格也是唯一一种不受任何约束的装修方式,它跨越了众多装修风格的时代背景,完美容纳了古今各国装修风格的不同装修元素,更是蕴含着不同装修风格的文化底蕴。
我们在每个房间内都放有储物柜,这样可以满足女主的物品存放问题。保留原始户型大挑空他的采光,更加通透,设计感强,美观度高。
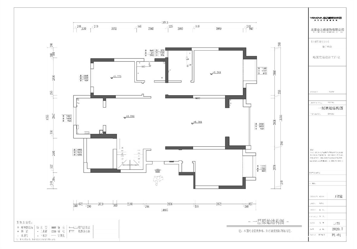
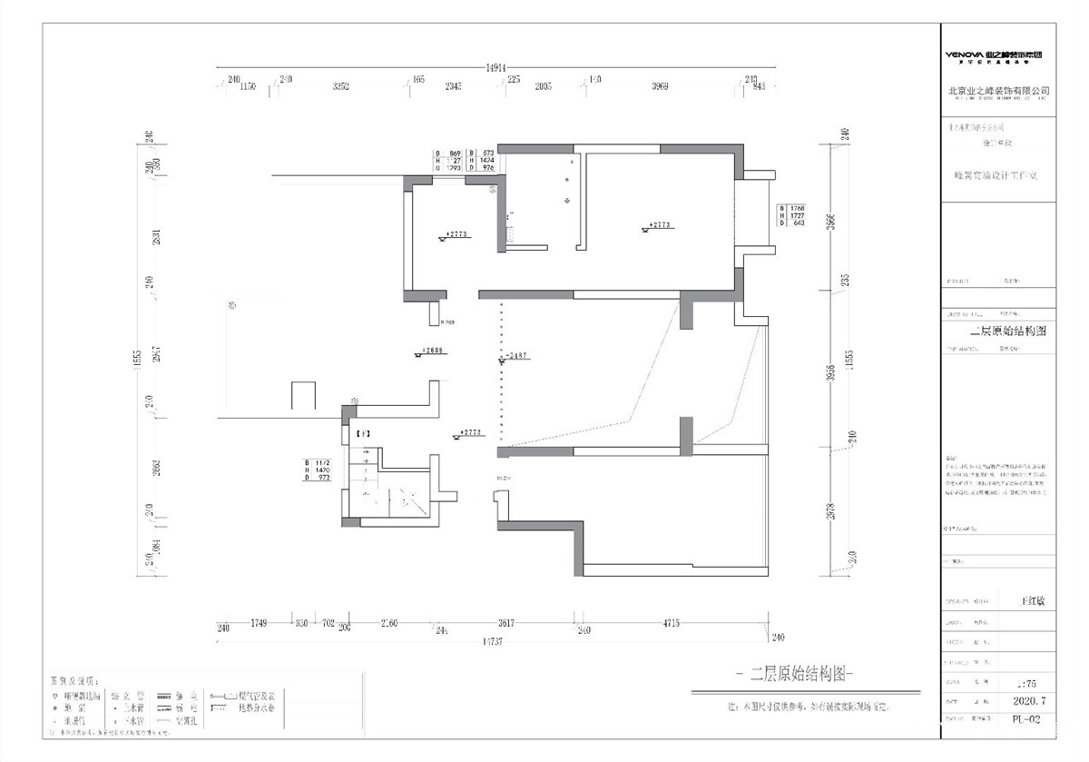
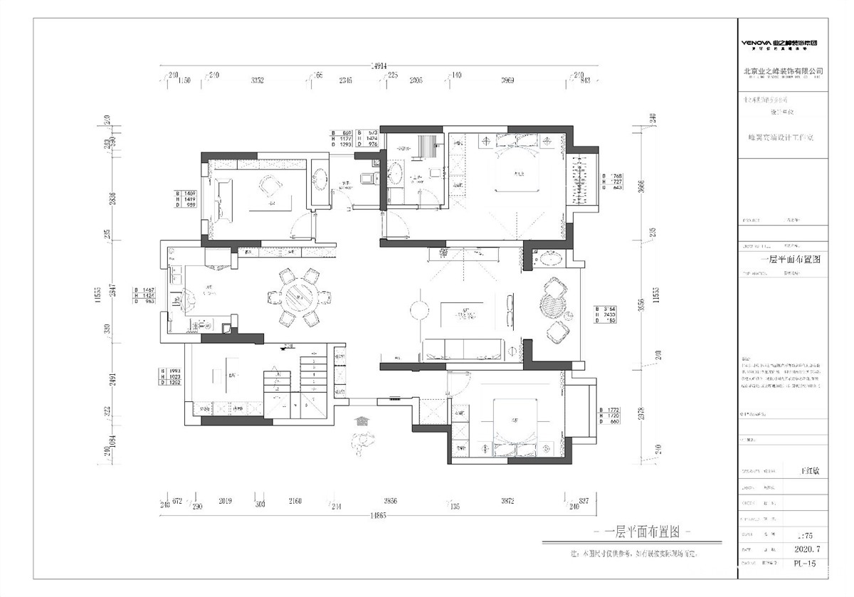
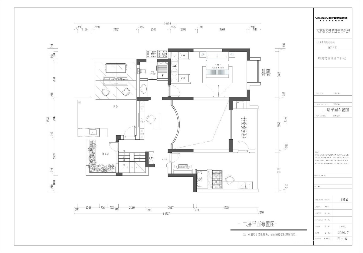
户型图

书房

客厅






休闲区

楼梯

儿童房

餐厅





京公安网备11010502040911