77㎡二居北欧风格常青藤
发布时间:
2020年07月11日
小区:常青藤 面积:77㎡ 户型:二居 风格:北欧风格
设计说明
本案以纯净的白色为基础色,结合黄色与蓝灰色作为对比色的活泼设计,
并在各处摆放绿意活力的盆栽点缀,使得整体空间呈现清新乾淨的视觉感,
人字拼木地板让简约空间生动了起来,赋予空间柔和的变化性;
并以大幅抽象淡雅摄影照点缀墙面,体现出屋主的优雅性格及生活态度
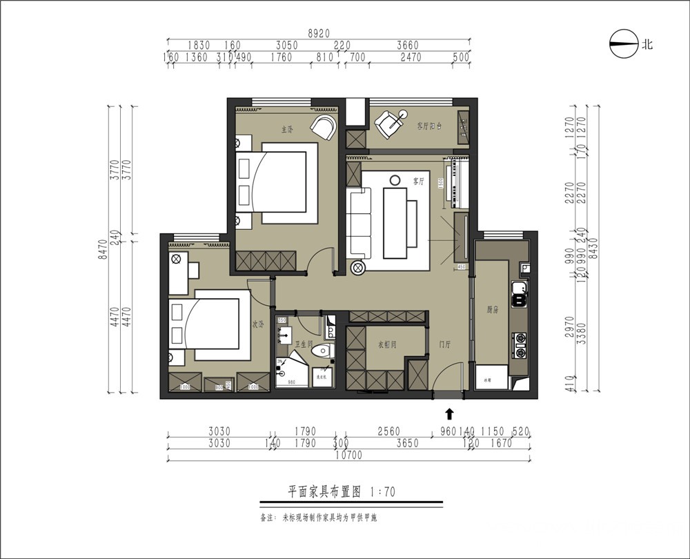
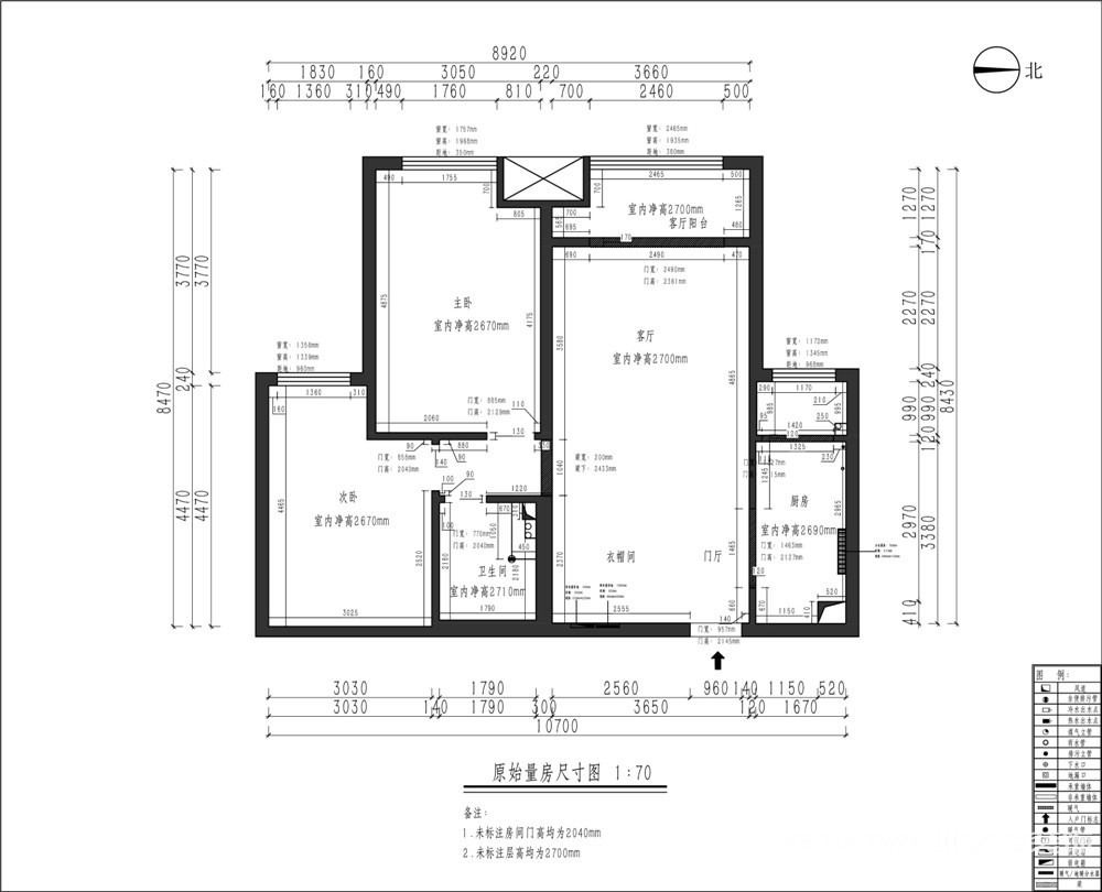
本案装修户型:两室两厅一厨一卫
客户需求:希望通过设计实现户型图 
卧室


厨房

客厅





阳台





京公安网备11010502040911