330㎡别墅美式风格红莲湖
发布时间:
2020年07月10日
小区:红莲湖 面积:330㎡ 户型:别墅 风格:美式风格
设计说明
现代美式风格是时代发展趋势的产物,指的是是色彩相对传统,美式更加丰富,更加年轻化,家具选择更有包容性。其追求华丽、高雅的古典风格,居室色彩主调为暖色。本案设计整体色彩柔和宁静,适当的跳色使整体空间活泼生动。顶面、地面上下呼应将各区域空间合理划分,整体和谐统一,彰显了现代美式的时尚性特征。
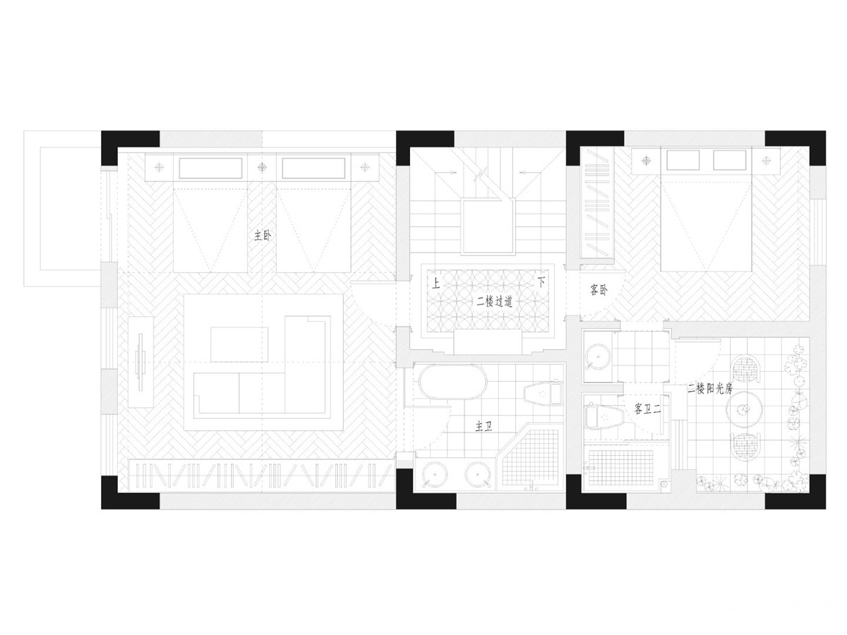
户型图

客厅





餐厅

卧室






京公安网备11010502040911