117㎡三居北欧风格阳光汾河湾
发布时间:
2020年07月05日
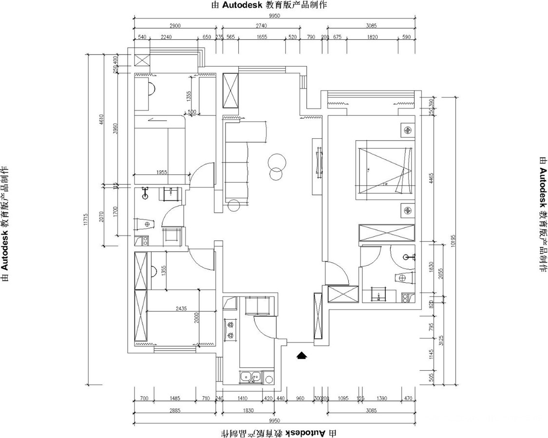
小区:阳光汾河湾 面积:117㎡ 户型:三居 风格:北欧风格
设计说明
客户是年轻人,喜欢颜色比较对比强烈的感觉,在简单沟通之后,确定可本次案例的风格,北欧风格温柔是这个家的自然属性,明暗交错的光线,慢慢的安抚着每一件事物不安分的小情绪;调皮的小孩也会放下手中的玩具,附耳荏苒光阴。
户型图

客厅





卧室


书房





京公安网备11010502040911