260㎡别墅现代简约风格清溪玫瑰园别墅
发布时间:
2020年06月20日
小区:清溪玫瑰园别墅 面积:260㎡ 户型:别墅 风格:现代简约风格
设计说明
本案例为美式乡村风的联排别墅。整体设计在古典中带有一点随意,不是以繁琐来追求奢华,而是兼具古典主义的优美造型与新古典主义的功能配备,既简洁明快,又温暖舒适,凸显了浓郁的新颖美式乡村风格。客厅宽敞恢弘,富有历史气息,不显过分华丽隆重,但依旧流淌出典雅的贵气。家具的造型、纹路、雕饰和色调细腻高贵,耐人寻味中透露亘古而久远的芬芳,漫步其中。卧房中各种抽象植物图案的清淡优雅的布艺点缀其中,营造出闲散与自在,温情与柔软的氛围。在壁炉,碎花布,拱门,异域风情丰饶的各色饰品,实木感醇厚的家具以及各种美式乡村元素的渲染下,更得一份田园的舒适与宁静。
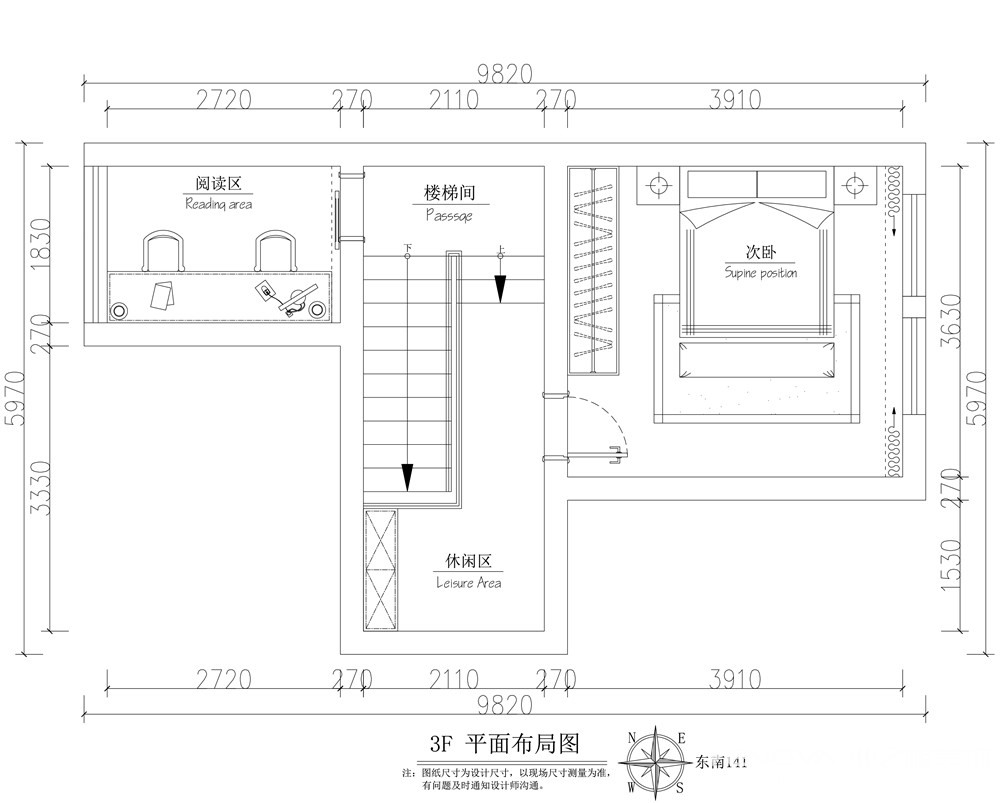
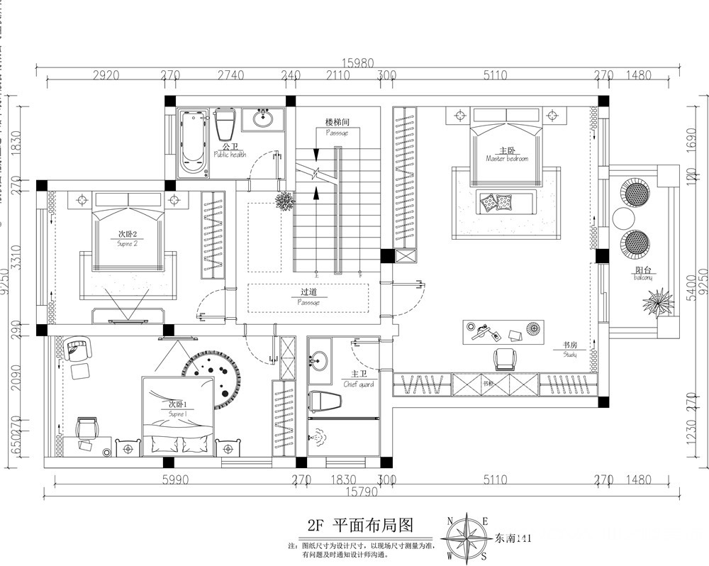
户型图

客厅




卧室


休闲区

餐厅





京公安网备11010502040911