240㎡别墅美式风格万科翡翠公园
发布时间:
2020年06月20日
小区:万科翡翠公园 面积:240㎡ 户型:别墅 风格:美式风格
设计说明
本案例为美式轻奢风格的别墅,整体色调以象牙白、驼色为主,经典美式轻奢的休闲式浪漫风随处可见。主卧自然系纹理木料搭配大量原木色系家具装饰,运用的复古元素恰到好处,使生活兼具温馨和仪式感。老人房配以玫瑰金边框挂画,紫金色台灯庄重典雅,同时在丰盈明媚的采光下,房间格调奢华十足却不显压抑。
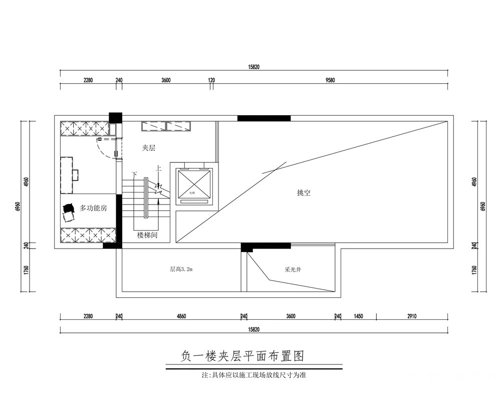
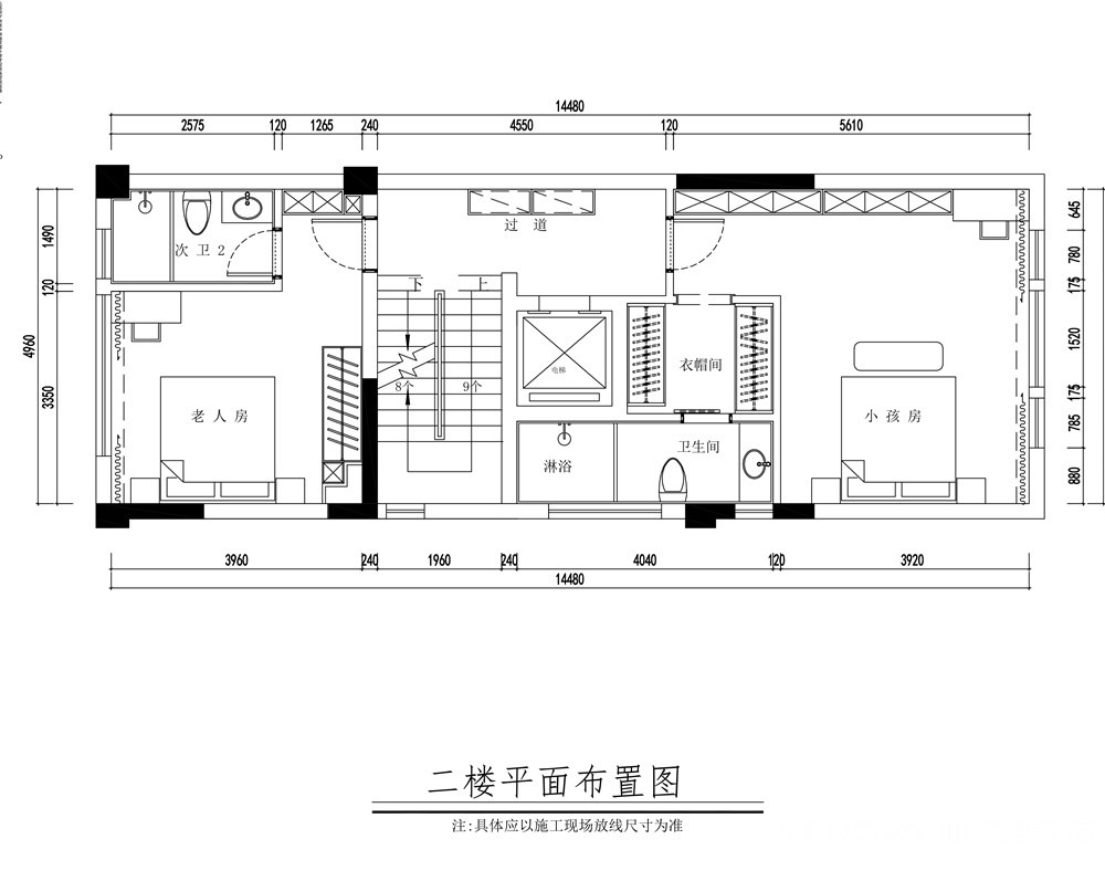
户型图

卧室


客厅









京公安网备11010502040911