010-84934479
扫码快速拨号 >
扫码快速拨号

500㎡别墅其他雅居乐别墅

发布时间: 2020年06月20日
小区:雅居乐别墅 面积:500㎡ 户型:别墅 风格:其他
设计说明

本案定位为轻奢风格设计。轻奢风格是装修设计以高品质和简

约为基础。设计简约大方、时尚、前卫、优雅、给人温暖舒适的感觉。与

现代风格相比,它具有更多的品质和设计感,它融合了奢华与内涵的气质。

房屋的客厅是比较宽敞的,可以最大限度的利用空间。家具方面选择灰色

色调和金属元素的点缀,营造平静而不失时尚的气氛。


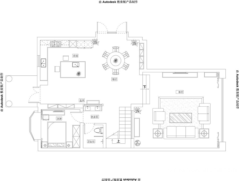
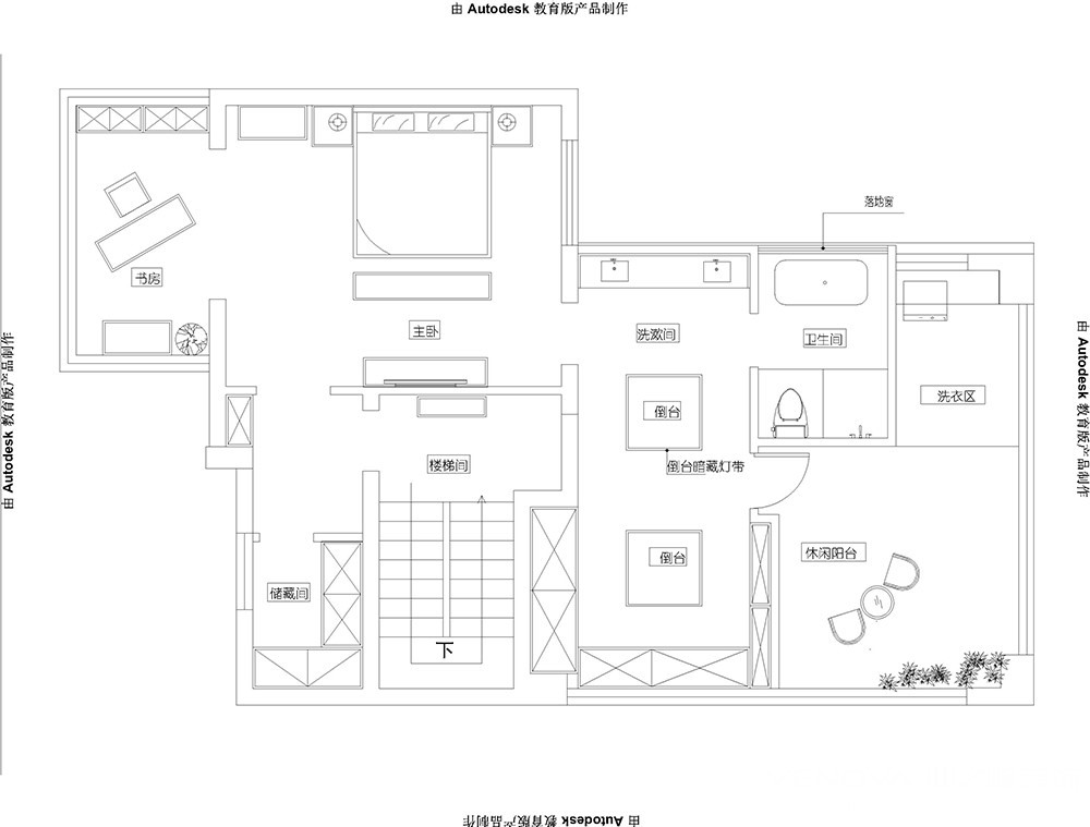
户型图
餐厅
休闲区
卧室
卫生间
客厅
书房
本案设计师
业之峰专业设计师
我家装成这样多少钱?
相关案例推荐
报价计算器
免费量房
免费设计
回到顶部