350㎡别墅轻奢风格万科五龙山
发布时间:
2020年06月20日
小区:万科五龙山 面积:350㎡ 户型:别墅 风格:轻奢风格
设计说明
繁华之外,幸存一份对空间的享有,营造诗意生活,是此案设计的初衷。在此案中,审美与艺术中的内省体验,直觉与理性中的情感营造,在遵循同一性原则下,结合"中和之美"所界定的和谐统一,构建了空间“大隐于市,修身齐家”的美好居住愿景。
设计从整体性去规划空间,原天花结构被重新规整后,大胆呈现块面穿插,立面辅以氤氲雅致的白底石纹岩板,焕活空间韵律。一体化的设计,整个居室自然流动,如诗如画。
雅奢之境,是现代文人雅士追求的"中和之美"生活艺术,强调审美意蕴程度适中,不过分而无不及。一如论音乐之美时主张的:“声出于和,和出于适”,给人愉悦、轻松的审美快感。
室内设计亦遵循这一原则。形制、构成和表现依托中式美学精髓,同时对色彩、质感及艺术品的搭配,更加强调现代生活的舒适,自然呈现丰富的精神内涵和回味无穷的神韵意味。
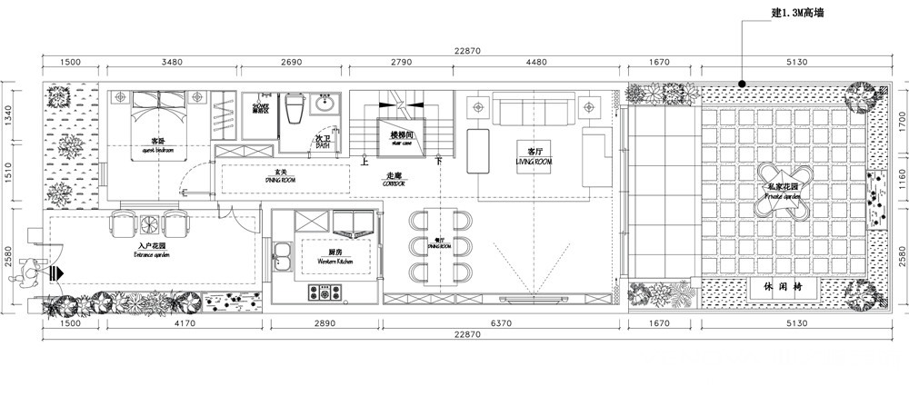
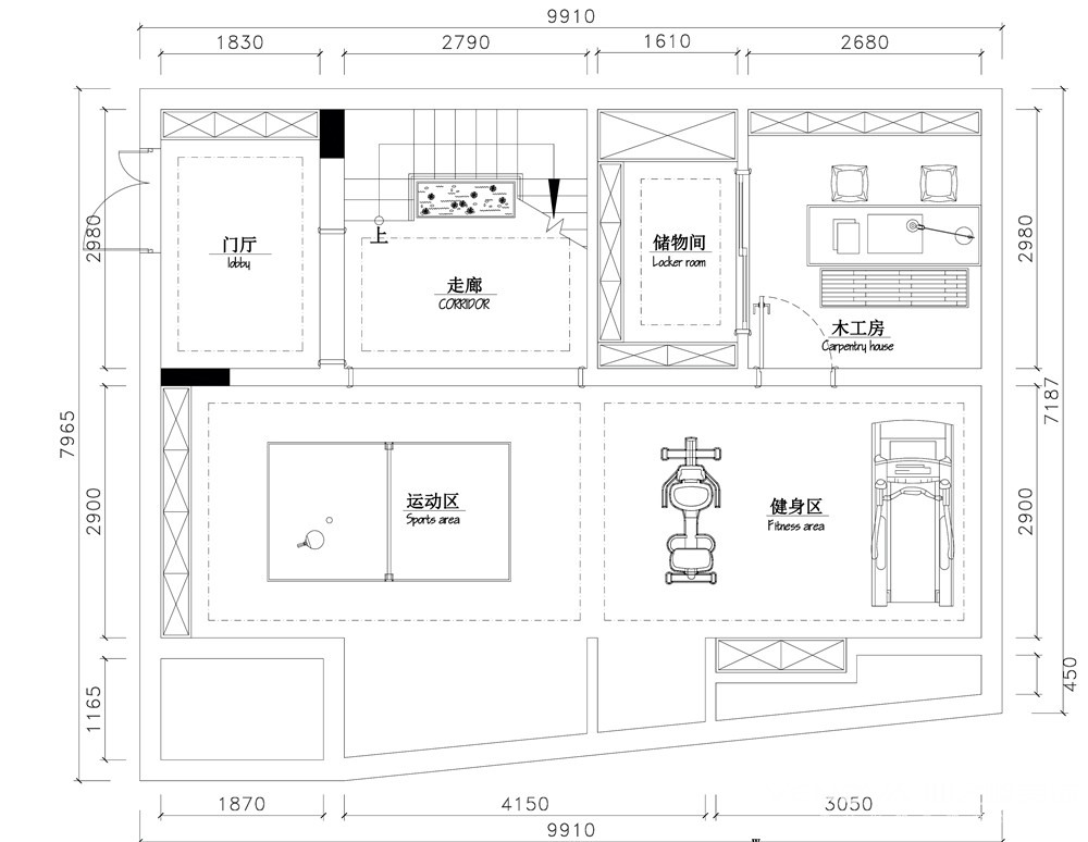
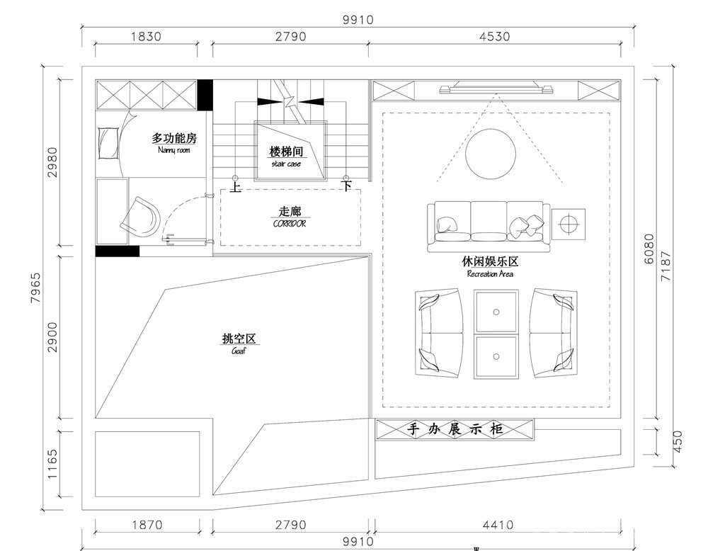
户型图

客厅








休闲区

卧室







京公安网备11010502040911