380㎡别墅新中式风格绿地国际生态城
                  发布时间:
                  2020年06月16日
                
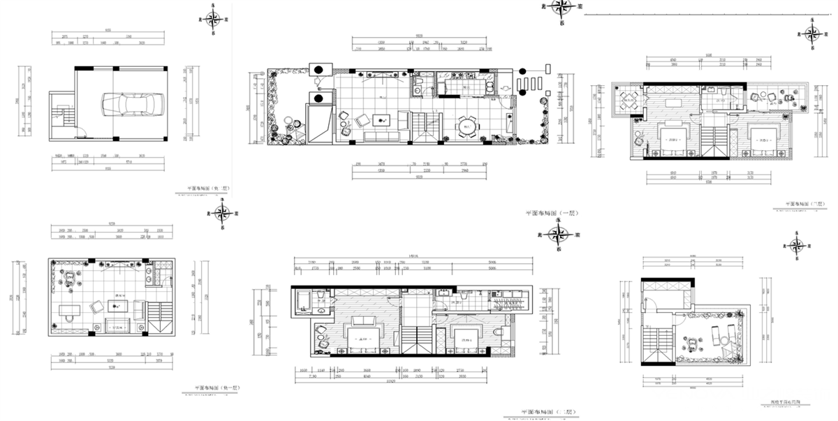
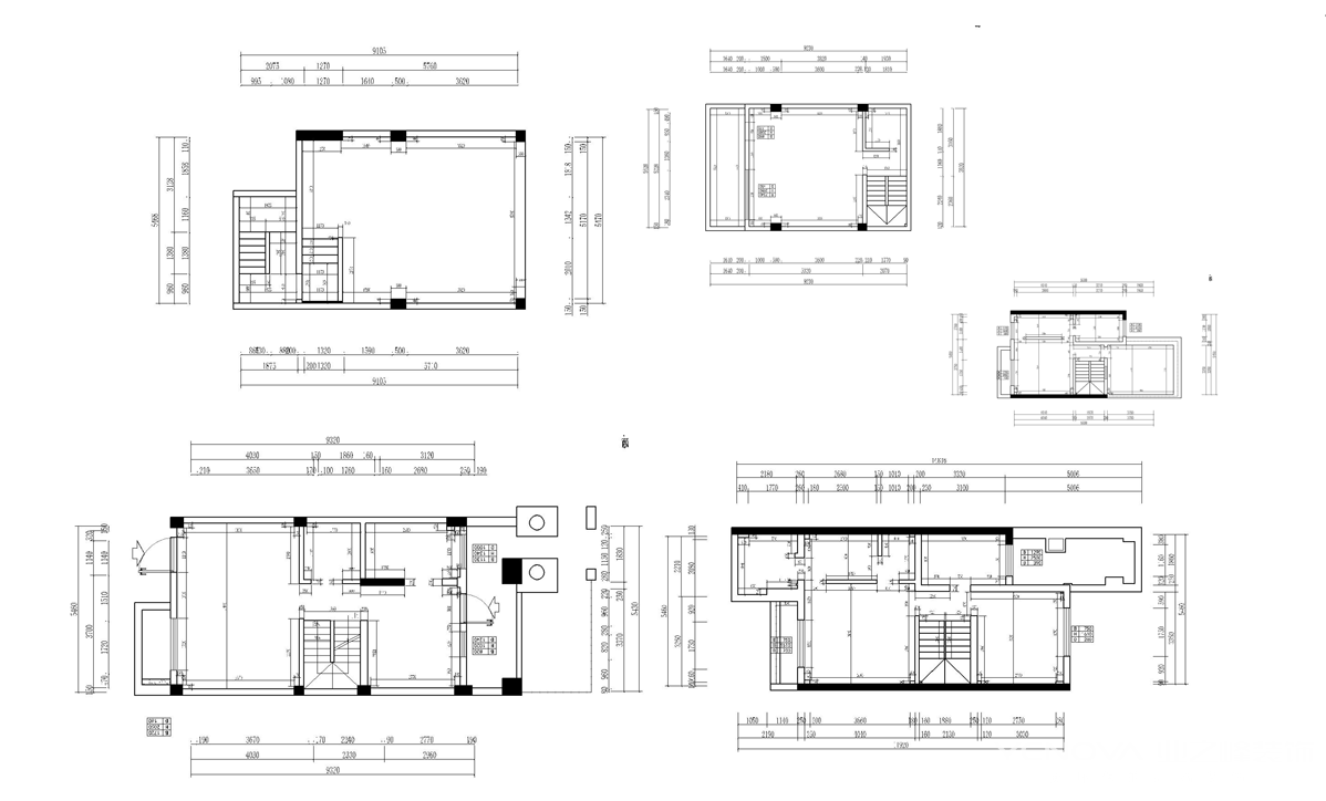
 小区:绿地国际生态城 面积:380㎡ 户型:别墅 风格:新中式风格
设计说明
 现代中式风格更多地利用了后现代手法,墙上挂一幅中国山水画等传统的书房里自然少不了书柜、书案以及文房四宝。 中式风格的客厅具有内蕴的风格,为了舒服,中式的环境中也常常用到沙发,但颜色仍然体现着中式的古朴,中式风格这种表现使整个空间,传统中透着现代,现代中揉着古典。这样就以一种东方人的"留白"美学观念控制的节奏,显出大家风范,其墙壁上的字画无论数量还是内容都不在多,而在于它所营造的意境。可以说无论西风如何劲吹,舒缓的意境始终是东方人特有的情怀,因此书法常常是成就这种诗意的最好手段。这样躺在舒服的沙发上,任千年的故事顺指间流淌。中式风格的代表是中国明清古典传统家具及中式园林建筑、色彩的设计造型。特点是对称、简约、朴素、格调雅致、文化内涵丰富,中式风格家居体现主人的较高审美情趣与社会地位。
户型图
 
卧室
 

客厅
 









餐厅
 
休闲区
 
书房
 

 


京公安网备11010502040911