142㎡四居美式风格香榭御澄
发布时间:
2020年06月16日
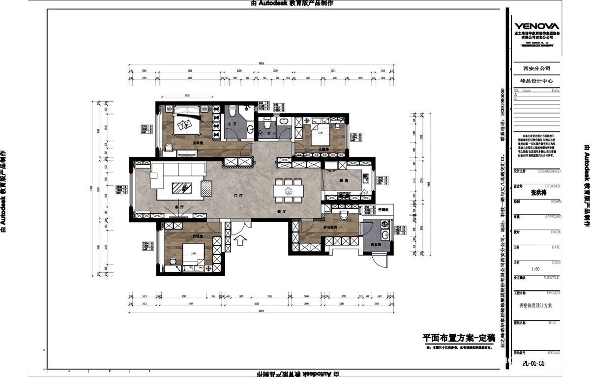
小区:香榭御澄 面积:142㎡ 户型:四居 风格:美式风格
设计说明
现代轻奢,在简约中隐匿轻奢;流转处乍现优雅。当轻奢的细致入微与现代的自在情调相遇,贵族格调邂逅简约爽朗,又是另一种迷人的风情而且功能空间相互渗透。本户型业主不喜欢常规餐桌的摆放,设计师利用空间布局设置吧台。在不规则的室内空间可充分利用边角空间,不但增加了实用面积,而且还使整个室内空间都显得整齐。
户型图

餐厅

客厅





卧室







京公安网备11010502040911