248㎡别墅现代简约风格蔷薇溪谷
发布时间:
2020年06月16日
小区:蔷薇溪谷 面积:248㎡ 户型:别墅 风格:现代简约风格
设计说明
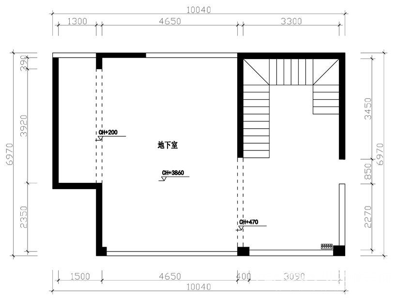
现代轻奢,以都市精英追求物质生活的丰富多彩,又对自然艺术品位有极高的要求为出发点,将现代简约的设计与时尚格调相融合,作为家庭日常生活主要活动的共有空间,以寓教于乐为设计理念的贯穿与整个空间。方案设计中餐厅的挑空设计最为亮点,贯穿整个空间南北动线,与开放式厨房两者相兼。在满足生活需求的情况下,负一层是全房核心的娱乐休闲区(健身,饮酒品茶,休闲一体)。使生活更富情趣
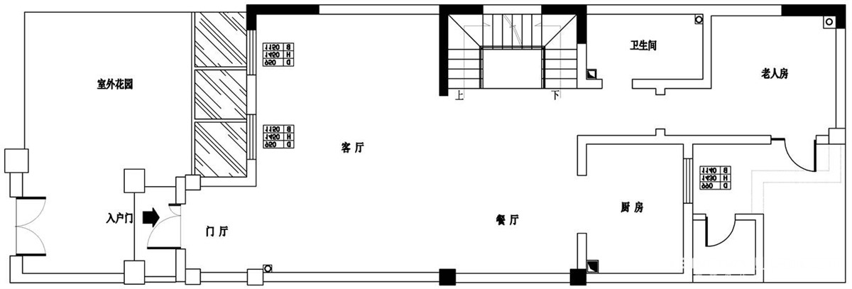
户型图

客厅









休闲区


楼梯

卧室

厨房

餐厅






京公安网备11010502040911