88㎡三居北欧风格逸景园
发布时间:
2020年06月12日
小区:逸景园 面积:88㎡ 户型:三居 风格:北欧风格
设计说明
本案常住人口是一家五口人,一对年轻的宝爸宝妈和宝宝的爷爷奶奶还有一个男宝。家里面整体装修由宝妈负责。女主人比较喜欢简约大气的感觉,喜欢由设计感的装饰,倾向于暖色调,喜欢明亮温馨的家庭氛围,同时还比较注重储物,喜欢简单,所以最终风格定位为北欧。
整体的家居颜色上面的运用,主要是以白色为设计的主色调,白色是一个简单的色系,又能给原有的空间提亮。客厅设置了一面整体柜子,给宝宝增加了存放玩具的空间,柜体与镂空的设计,使得原本厚重的柜子变得轻盈。黑板墙的实际完全满足宝宝的想象力与绘画需求,使得宝宝的活动范围更大,餐厅乳胶漆的设计选择的拼色,简单的乳胶漆刷出不同的设计风格,独特的造型满足女业主的需求。卧室的床下都设置了灯带,方便起夜的同时给原本寂静的卧室增添了一份活力。
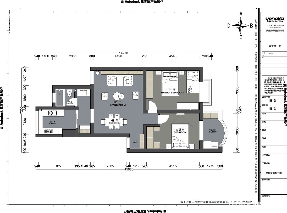
户型图

卧室


厨房


卫生间

客厅




餐厅







京公安网备11010502040911