220㎡复式现代简约风格百步亭现代城
发布时间:
2020年06月11日
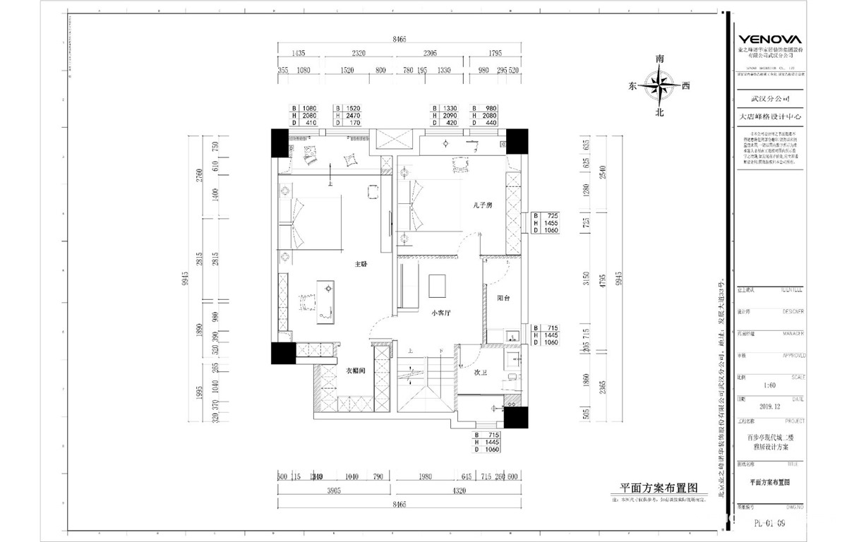
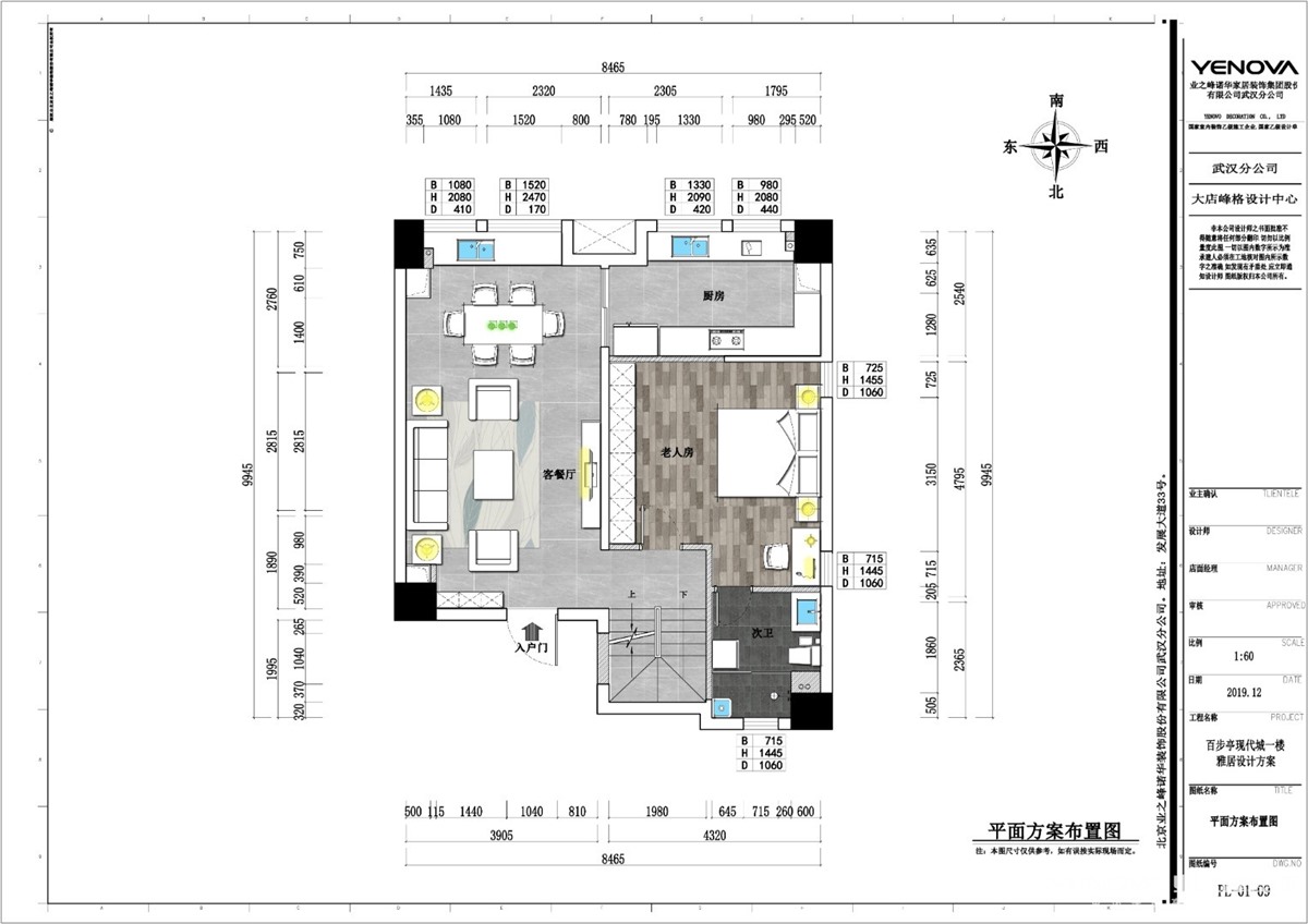
小区:百步亭现代城 面积:220㎡ 户型:复式 风格:现代简约风格
设计说明
此户型是两个LOFT构成的220平米三房两厅一厨二卫的户型。业主是一家四口,夫妻俩带一个小孩和一个老人。业主对生活品质和收纳储物空间有非常高的要求,另外要求每个空间都比较大,干净整洁,功能完整,色彩协调统一,合理利用空间,设计布局完善。在原始结构可改动的情况下把一楼的两个房间合成一个房间,两个客厅合为一个,拆除其中一个厨房,一部分面积用于餐厅,另外一个厨房向原客厅扩,这样厨房就比较大,满足家人做饭空间的舒适性。
户型图

餐厅

客厅




卧室





京公安网备11010502040911