158㎡复式简欧风格港口新村
发布时间:
2020年06月09日
小区:港口新村 面积:158㎡ 户型:复式 风格:简欧风格
设计说明
咨询电话:0791-86296016,本案是一家六口三代人居住,户型是自建小别墅,经过环保量房、现场观察与客户多次沟通,定义风格为简欧,在现代与欧式之间找到平衡,结合业主需求,得以此作品。
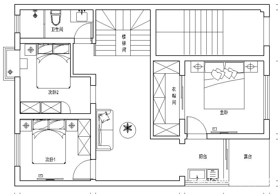
户型图

卧室



卫生间

厨房

客厅






咨询电话:0791-86296016,本案是一家六口三代人居住,户型是自建小别墅,经过环保量房、现场观察与客户多次沟通,定义风格为简欧,在现代与欧式之间找到平衡,结合业主需求,得以此作品。











